Woning Paramaribostraat 71 Leiden

Paramaribostraat 71, 2315VE Leiden

Ontvang updates voor De Kooi

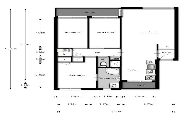
Het adres van deze woning uit 1965 is Paramaribostraat 71 te Leiden. Het pand heeft een oppervlakte van 67m² en heeft 4 kamers kamers waarvan 3 slaapkamers. De geschatte waarde van deze woning is € 139.500.

Bekijk alle woningen in De Kooi

Gegevens van Portiekflat (appartement)

Bouwjaar
1965
Geschatte waarde
€ 139.500
Oppervlakte
67 m2
Inhoud
210 m3
Aantal kamers
4 kamers
Slaapkamers
3
Badkamers
1 badkamer en 1 apart toilet
Soort bouw
Bestaande bouw
Eigendomssituatie
Volle eigendom
Ligging
Aan water, in woonwijk en vrij uitzicht

Voorzieningen in de buurt

Boodschappen0,3 km
Grote supermarkt0,7 km
Cafetaria0,4 km
Restaurant0,4 km
Huisarts0,6 km
Ziekenhuis2,7 km
Kinderdagverblijf0,4 km
BSO0,4 km
Alle voorzieningen in De Kooi

Binnenkijken bij Paramaribostraat 71 te Leiden

Meer meldingen in deze omgeving

112 melding
Maandag 10-11-2025 om 13:39
Zijloeverpad, 2315MK Leiden

112 melding
Maandag 10-11-2025 om 12:26
Sumatrastraat, Leiden

112 melding
Maandag 10-11-2025 om 02:29
Zijloeverpad, 2315MK Leiden

112 melding
Maandag 10-11-2025 om 01:12
Sumatrastraat, Leiden

112 melding
Zondag 9-11-2025 om 09:32
Corantijnstraat, Leiden

112 melding
Zaterdag 8-11-2025 om 12:06
Parkstraat, Leiden

112 melding
Zaterdag 8-11-2025 om 01:46
Lage Rijndijk, Leiden

112 melding
Vrijdag 7-11-2025 om 22:33
Javastraat, Leiden

Direct een e-mail ontvangen bij nieuwe meldingen in deze regio?

Meld je dan GRATIS aan voor de Oozo Alert service voor De Kooi

Instellen

Meer nieuws in De Kooi

Weten hoe eenvoudig het is om af te vallen? Zonder pillen en smeersels en zonder je in het zweet te werken!
Kijk op eenvoudig-afvallen.nl

© 2012 - 2025 OOZO.nl - info@oozo.nl - Gegevens verwijderen? | Disclaimer | Privacy statement