Woning Zalmforel 25 Leiden

Zalmforel 25, 2318MH Leiden

Ontvang updates voor Leedewijk-Noord

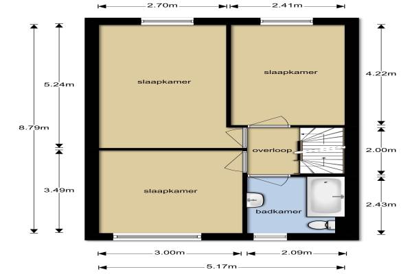
Het adres van deze woning uit 1986 is Zalmforel 25 te Leiden. Het pand heeft een oppervlakte van 114m² en een perceeloppervlakte van 119m² en heeft 5 kamers kamers waarvan 4 slaapkamers. De geschatte waarde van deze woning is € 299.000.

Bekijk alle woningen in Leedewijk-Noord

Gegevens van Eengezinswoning, tussenwoning

Bouwjaar
1986
Geschatte waarde
€ 299.000
Oppervlakte
114 m2
Inhoud
396 m3
Aantal kamers
5 kamers
Slaapkamers
4
Badkamers
1 badkamer en 1 apart toilet
Soort bouw
Bestaande bouw
Eigendomssituatie
Volle eigendom
Ligging
Aan park, aan rustige weg, in woonwijk en vrij uitzicht
Tuin
Achtertuin en voortuin
Achtertuin
49 m² (9,5m diep en 5,2m breed)

Voorzieningen in de buurt

Boodschappen1,1 km
Grote supermarkt1,4 km
Cafetaria1,4 km
Restaurant1,1 km
Huisarts0,6 km
Ziekenhuis3,3 km
Kinderdagverblijf0,6 km
BSO0,6 km
Alle voorzieningen in Leedewijk-Noord

Binnenkijken bij Zalmforel 25 te Leiden

Meer meldingen in deze omgeving

112 melding
Maandag 19-1-2026 om 18:08
Purperwier, 2318AE Leiden

112 melding
Maandag 19-1-2026 om 10:06
Zilverkarper, 2318NC Leiden

112 melding
Vrijdag 16-1-2026 om 15:23
Rivierforel, Leiden

112 melding
Vrijdag 16-1-2026 om 15:23
Rivierforel, Leiden

112 melding
Donderdag 15-1-2026 om 21:38
Purperwier, 2318AE Leiden

Binnenkijken bij
Dinsdag 13-1-2026
Pluimgras 8, 2318TK Leiden

112 melding
Woensdag 7-1-2026 om 01:41
Fakkelgras, Leiden

Binnenkijken bij
Woensdag 7-1-2026
Buntgras 3, 2318TA Leiden

Direct een e-mail ontvangen bij nieuwe meldingen in deze regio?

Meld je dan GRATIS aan voor de Oozo Alert service voor Leedewijk-Noord

Instellen

Meer nieuws in Leedewijk-Noord

Weten hoe eenvoudig het is om af te vallen? Zonder pillen en smeersels en zonder je in het zweet te werken!
Kijk op eenvoudig-afvallen.nl

© 2012 - 2026 OOZO.nl - info@oozo.nl - Gegevens verwijderen? | Disclaimer | Privacy statement