Woning Vossebes 20 Leiden

Vossebes 20, 2318AP Leiden

Ontvang updates voor Leedewijk-Noord

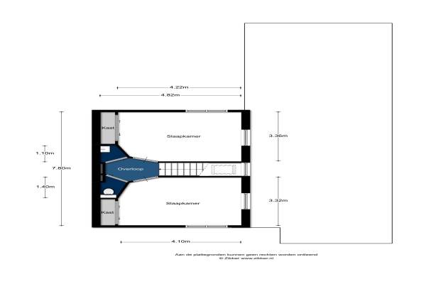
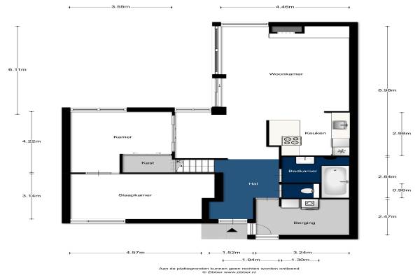
Het adres van deze woning uit 1978 is Vossebes 20 te Leiden. Het pand heeft een oppervlakte van 139m² en een perceeloppervlakte van 290m² en heeft 5 kamers kamers waarvan 4 slaapkamers. De geschatte waarde van deze woning is € 395.000.

Bekijk alle woningen in Leedewijk-Noord

Gegevens van Bungalow, verspringend

Bouwjaar
1978
Geschatte waarde
€ 395.000
Oppervlakte
139 m2
Inhoud
505 m3
Aantal kamers
5 kamers
Slaapkamers
4
Soort bouw
Bestaande bouw
Eigendomssituatie
Volle eigendom
Ligging
In woonwijk
Tuin
Voortuin en achtertuin
Achtertuin
100 m² (13m diep en 10m breed)

Voorzieningen in de buurt

Boodschappen1,1 km
Grote supermarkt1,4 km
Cafetaria1,4 km
Restaurant1,1 km
Huisarts0,6 km
Ziekenhuis3,3 km
Kinderdagverblijf0,6 km
BSO0,6 km
Alle voorzieningen in Leedewijk-Noord

Binnenkijken bij Vossebes 20 te Leiden

Meer meldingen in deze omgeving

112 melding
Dinsdag 20-1-2026 om 14:06
Draadzegge, 2318ZM Leiden

112 melding
Maandag 19-1-2026 om 18:08
Purperwier, 2318AE Leiden

112 melding
Maandag 19-1-2026 om 10:06
Zilverkarper, 2318NC Leiden

112 melding
Vrijdag 16-1-2026 om 15:23
Rivierforel, Leiden

112 melding
Vrijdag 16-1-2026 om 15:23
Rivierforel, Leiden

112 melding
Donderdag 15-1-2026 om 21:38
Purperwier, 2318AE Leiden

Binnenkijken bij
Dinsdag 13-1-2026
Pluimgras 8, 2318TK Leiden

112 melding
Woensdag 7-1-2026 om 01:41
Fakkelgras, Leiden

Direct een e-mail ontvangen bij nieuwe meldingen in deze regio?

Meld je dan GRATIS aan voor de Oozo Alert service voor Leedewijk-Noord

Instellen

Meer nieuws in Leedewijk-Noord

Weten hoe eenvoudig het is om af te vallen? Zonder pillen en smeersels en zonder je in het zweet te werken!
Kijk op eenvoudig-afvallen.nl

© 2012 - 2026 OOZO.nl - info@oozo.nl - Gegevens verwijderen? | Disclaimer | Privacy statement