Woning Dagvlinder 130 Leiden

Dagvlinder 130, 2317JK Leiden

Ontvang updates voor Zijlwijk-Noord

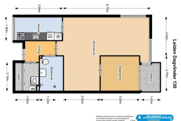
Het adres van deze woning is Dagvlinder 130 te Leiden. Het pand heeft een oppervlakte van 58m² en heeft 2 kamers kamers waarvan 1 slaapkamers. De geschatte waarde van deze woning is € 135.000.

Bekijk alle woningen in Zijlwijk-Noord

Gegevens van

Geschatte waarde
€ 135.000
Oppervlakte
58 m² woonopp. m2
Aantal kamers
2 kamers

Voorzieningen in de buurt

Boodschappen1,2 km
Grote supermarkt1,4 km
Cafetaria1,4 km
Restaurant0,6 km
Huisarts0,5 km
Ziekenhuis3,8 km
Kinderdagverblijf0,9 km
BSO0,5 km
Alle voorzieningen in Zijlwijk-Noord

Binnenkijken bij Dagvlinder 130 te Leiden

Meer meldingen in deze omgeving

112 melding
Zondag 16-11-2025 om 04:54
Primuladuin, Leiden

Binnenkijken bij
Vrijdag 14-11-2025
Magnoliadal 8, 2317HX Leiden

Binnenkijken bij
Vrijdag 14-11-2025
Kwikstaarthoek 27, 2317WT Leiden

Nieuw bedrijf
November 2025
Ambrosiadal 16, 2317HH Leiden

112 melding
Woensdag 12-11-2025 om 15:10
Fuchsiadal, Leiden

112 melding
Woensdag 12-11-2025 om 15:01
Fuchsiadal, Leiden

Nieuw bedrijf
November 2025
Freesiadal 2, 2317HN Leiden

112 melding
Donderdag 6-11-2025 om 08:38
Heivlinder, Leiden

Direct een e-mail ontvangen bij nieuwe meldingen in deze regio?

Meld je dan GRATIS aan voor de Oozo Alert service voor Zijlwijk-Noord

Instellen

Meer nieuws in Zijlwijk-Noord

Weten hoe eenvoudig het is om af te vallen? Zonder pillen en smeersels en zonder je in het zweet te werken!
Kijk op eenvoudig-afvallen.nl

© 2012 - 2025 OOZO.nl - info@oozo.nl - Gegevens verwijderen? | Disclaimer | Privacy statement