Woning Lemsteraakwerf 9 Leiden

Lemsteraakwerf 9, 2317DP Leiden

Ontvang updates voor Zijlwijk-Zuid

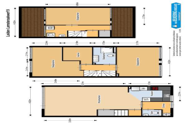
Het adres van deze woning uit 1975 is Lemsteraakwerf 9 te Leiden. Het pand heeft een oppervlakte van 111m² en een perceeloppervlakte van 118m² en heeft 5 kamers kamers waarvan 3 slaapkamers. De geschatte waarde van deze woning is € 290.000.

Bekijk alle woningen in Zijlwijk-Zuid

Gegevens van Eengezinswoning, tussenwoning

Bouwjaar
1975
Geschatte waarde
€ 290.000
Oppervlakte
111 m2
Inhoud
350 m3
Aantal kamers
5 kamers
Slaapkamers
3
Badkamers
1 badkamer en 1 apart toilet
Soort bouw
Bestaande bouw
Eigendomssituatie
Volle eigendom
Ligging
Aan rustige weg en in woonwijk
Tuin
Achtertuin en voortuin
Achtertuin
58 m² (12m diep en 4,8m breed)

Voorzieningen in de buurt

Boodschappen0,7 km
Grote supermarkt0,8 km
Cafetaria0,7 km
Restaurant0,5 km
Huisarts0,6 km
Ziekenhuis3,4 km
Kinderdagverblijf0,7 km
BSO0,5 km
Alle voorzieningen in Zijlwijk-Zuid

Binnenkijken bij Lemsteraakwerf 9 te Leiden

Meer meldingen in deze omgeving

112 melding
Vrijdag 7-11-2025 om 11:00
Stokroos, Leiden

112 melding
Donderdag 6-11-2025 om 22:51
Drontermeerlaan, Leiden

112 melding
Zondag 2-11-2025 om 22:16
Akkerhoornbloem, Leiden

Binnenkijken bij
Woensdag 29-10-2025
Kromstevenwerf 52, 2317DH Leiden

Binnenkijken bij
Woensdag 29-10-2025
Stokroos 28, 2317ER Leiden

112 melding
Maandag 27-10-2025 om 22:51
Driemasterwal, 2317GV Leiden

112 melding
Maandag 27-10-2025 om 22:49
Driemasterwal, 2317GV Leiden

112 melding
Vrijdag 24-10-2025 om 10:00
Strobloem, Leiden

Direct een e-mail ontvangen bij nieuwe meldingen in deze regio?

Meld je dan GRATIS aan voor de Oozo Alert service voor Zijlwijk-Zuid

Instellen

Meer nieuws in Zijlwijk-Zuid

Weten hoe eenvoudig het is om af te vallen? Zonder pillen en smeersels en zonder je in het zweet te werken!
Kijk op eenvoudig-afvallen.nl

© 2012 - 2025 OOZO.nl - info@oozo.nl - Gegevens verwijderen? | Disclaimer | Privacy statement