Woning Duyvendakstraat 1 Leiden

Duyvendakstraat 1, 2313PZ Leiden

Ontvang updates voor Professorenwijk-Oost

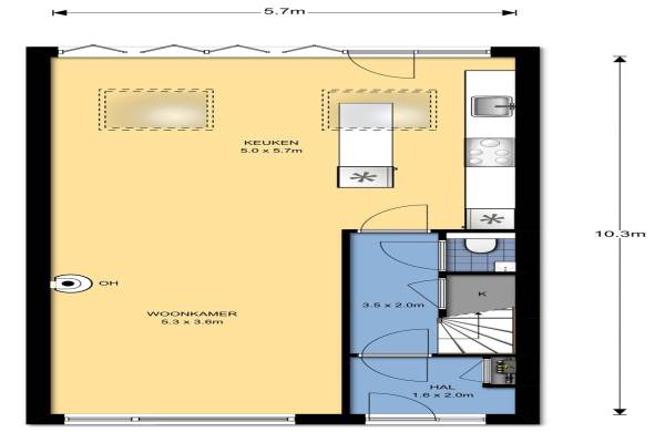
Het adres van deze woning uit 1957 is Duyvendakstraat 1 te Leiden. Het pand heeft een oppervlakte van 135m² en een perceeloppervlakte van 155m² en heeft 6 kamers kamers waarvan 5 slaapkamers. De geschatte waarde van deze woning is € 495.000.

Bekijk alle woningen in Professorenwijk-Oost

Gegevens van Eengezinswoning, hoekwoning

Bouwjaar
1957
Geschatte waarde
€ 495.000
Oppervlakte
135 m2
Inhoud
477 m3
Aantal kamers
6 kamers
Slaapkamers
5
Soort bouw
Bestaande bouw
Eigendomssituatie
Volle eigendom
Ligging
In woonwijk
Tuin
Achtertuin
Achtertuin
56 m² (9,8m diep en 5,75m breed)

Voorzieningen in de buurt

Boodschappen0,5 km
Grote supermarkt0,5 km
Cafetaria0,7 km
Restaurant0,7 km
Huisarts0,4 km
Ziekenhuis3,2 km
Kinderdagverblijf0,2 km
BSO0,2 km
Alle voorzieningen in Professorenwijk-Oost

Binnenkijken bij Duyvendakstraat 1 te Leiden

Meer meldingen in deze omgeving

112 melding
Donderdag 19-2-2026 om 08:44
Colenbranderstraat, 2313PX Leiden

112 melding
Donderdag 19-2-2026 om 08:44
Colenbranderstraat, 2313PX Leiden

112 melding
Zondag 15-2-2026 om 10:25
Colenbranderstraat, 2313PX Leiden

112 melding
Zaterdag 14-2-2026 om 04:52
Colenbranderstraat, 2313PX Leiden

112 melding
Maandag 2-2-2026 om 06:15
Oppenheimstraat, Leiden

Binnenkijken bij
Donderdag 22-1-2026
Burggravenlaan 70, 2313HW Leiden

Nieuw bedrijf
Januari 2026
Scholtenstraat 43, 2313GK Leiden

112 melding
Maandag 19-1-2026 om 14:57
Van Vollenhovenplein, Leiden

Direct een e-mail ontvangen bij nieuwe meldingen in deze regio?

Meld je dan GRATIS aan voor de Oozo Alert service voor Professorenwijk-Oost

Instellen

Meer nieuws in Professorenwijk-Oost

Weten hoe eenvoudig het is om af te vallen? Zonder pillen en smeersels en zonder je in het zweet te werken!
Kijk op eenvoudig-afvallen.nl

© 2012 - 2026 OOZO.nl - info@oozo.nl - Gegevens verwijderen? | Disclaimer | Privacy statement