Woning Van de Sande Bakhuyzenlaan 7 Leiden

Van de Sande Bakhuyzenlaan 7, 2313SE Leiden

Ontvang updates voor Professorenwijk-West

Het adres van deze woning uit 1939 is Van de Sande Bakhuyzenlaan 7 te Leiden. Het pand heeft 4 kamers kamers waarvan 3 slaapkamers. De geschatte waarde van deze woning is € 500.000.

Bekijk alle woningen in Professorenwijk-West

Gegevens van Eengezinswoning, vrijstaande woning

Bouwjaar
1939
Geschatte waarde
€ 500.000
Oppervlakte
0 m2
Inhoud
402 m3
Aantal kamers
4 kamers
Slaapkamers
3
Soort bouw
Bestaande bouw
Eigendomssituatie
Volle eigendom
Ligging
Aan rustige weg en vrij uitzicht
Tuin
Voortuin en achtertuin
Achtertuin
63 m² (11,3m diep en 5,6m breed)

Voorzieningen in de buurt

Boodschappen0,2 km
Grote supermarkt0,9 km
Cafetaria0,9 km
Restaurant0,3 km
Huisarts0,5 km
Ziekenhuis3,3 km
Kinderdagverblijf0,3 km
BSO0,3 km
Alle voorzieningen in Professorenwijk-West

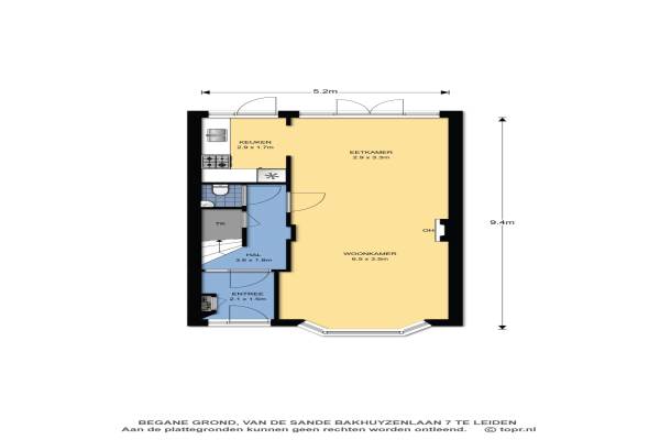
Binnenkijken bij Van de Sande Bakhuyzenlaan 7 te Leiden

Meer meldingen in deze omgeving

112 melding
Woensdag 21-1-2026 om 15:23
Van 't Hoffstraat, Leiden

112 melding
Woensdag 21-1-2026 om 15:23
Van 't Hoffstraat, Leiden

Nieuw bedrijf
Januari 2026
De Sitterlaan 110, 2313TS Leiden

112 melding
Dinsdag 20-1-2026 om 00:30
Kamerlingh Onnesplein, 2313VL Leiden

112 melding
Zondag 18-1-2026 om 14:36
Van der Hoevenstraat, 2313VA Leiden

112 melding
Zondag 18-1-2026 om 06:21
Van 't Hoffstraat, Leiden

112 melding
Zondag 11-1-2026 om 13:16
Lorentzkade, Leiden

112 melding
Donderdag 8-1-2026 om 23:42
Van der Hoevenstraat, 2313VA Leiden

Direct een e-mail ontvangen bij nieuwe meldingen in deze regio?

Meld je dan GRATIS aan voor de Oozo Alert service voor Professorenwijk-West

Instellen

Meer nieuws in Professorenwijk-West

Weten hoe eenvoudig het is om af te vallen? Zonder pillen en smeersels en zonder je in het zweet te werken!
Kijk op eenvoudig-afvallen.nl

© 2012 - 2026 OOZO.nl - info@oozo.nl - Gegevens verwijderen? | Disclaimer | Privacy statement