Woning Lammenschansweg 13 Leiden

Lammenschansweg 13, 2313DH Leiden

Ontvang updates voor Tuinstadwijk

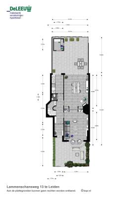
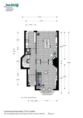
Het adres van deze woning is Lammenschansweg 13 te Leiden. Het pand heeft een oppervlakte van 213m² en een perceeloppervlakte van 153m² en heeft 6 kamers kamers waarvan 5 slaapkamers. De geschatte waarde van deze woning is € 695.000.

Bekijk alle woningen in Tuinstadwijk

Gegevens van

Geschatte waarde
€ 695.000
Oppervlakte
213 m² woonopp. m2
Aantal kamers
6 kamers

Voorzieningen in de buurt

Boodschappen0,2 km
Grote supermarkt0,3 km
Cafetaria0,3 km
Restaurant0,3 km
Huisarts0,2 km
Ziekenhuis2,8 km
Kinderdagverblijf0,3 km
BSO0,3 km
Alle voorzieningen in Tuinstadwijk

Binnenkijken bij Lammenschansweg 13 te Leiden

Meer meldingen in deze omgeving

112 melding
Vrijdag 7-11-2025 om 10:54
Prinses Wilhelminastraat, Leiden

112 melding
Donderdag 6-11-2025 om 04:56
Herenstraat, Leiden

112 melding
Zaterdag 1-11-2025 om 05:06
Magdalena Moonsstraat, Leiden

Binnenkijken bij
Donderdag 30-10-2025
Koninginnelaan 66, 2313AT Leiden

Nieuw bedrijf
Oktober 2025
Zoeterwoudsesingel 11, 2313AX Leiden

Nieuw bedrijf
Oktober 2025
Staalwijkstraat 25, 2313XP Leiden

Binnenkijken bij
Woensdag 29-10-2025
Schelpenkade 57, 2313ZZ Leiden

Binnenkijken bij
Woensdag 29-10-2025
Lammenschansweg 23, 2313DH Leiden

Direct een e-mail ontvangen bij nieuwe meldingen in deze regio?

Meld je dan GRATIS aan voor de Oozo Alert service voor Tuinstadwijk

Instellen

Meer nieuws in Tuinstadwijk

Weten hoe eenvoudig het is om af te vallen? Zonder pillen en smeersels en zonder je in het zweet te werken!
Kijk op eenvoudig-afvallen.nl

© 2012 - 2025 OOZO.nl - info@oozo.nl - Gegevens verwijderen? | Disclaimer | Privacy statement