Woning Watergeuzenstraat 31 Leiden

Watergeuzenstraat 31, 2313WX Leiden

Ontvang updates voor Tuinstadwijk

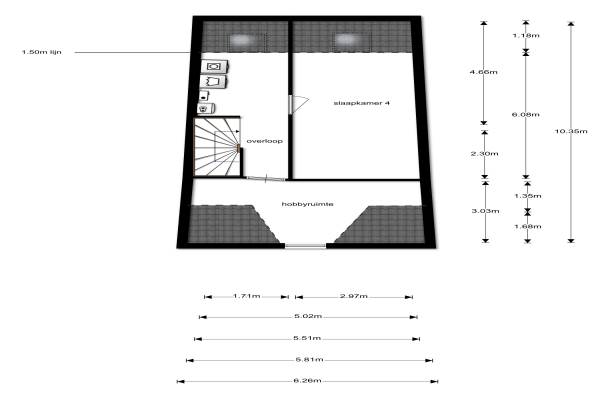
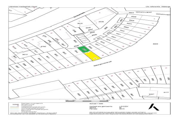
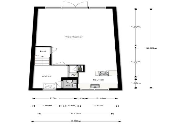
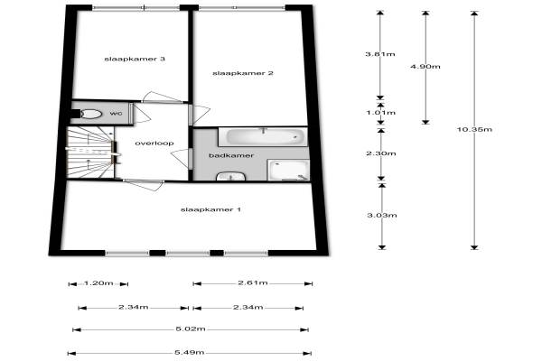
Het adres van deze woning uit 1999 is Watergeuzenstraat 31 te Leiden. Het pand heeft een oppervlakte van 148m² en een perceeloppervlakte van 99m² en heeft 6 kamers kamers waarvan 5 slaapkamers. De geschatte waarde van deze woning is € 500.000.

Bekijk alle woningen in Tuinstadwijk

Gegevens van Eengezinswoning, tussenwoning

Bouwjaar
1999
Geschatte waarde
€ 500.000
Oppervlakte
148 m2
Inhoud
500 m3
Aantal kamers
6 kamers
Slaapkamers
5
Badkamers
1 badkamer en 2 aparte toiletten
Soort bouw
Bestaande bouw
Eigendomssituatie
Volle eigendom
Ligging
Aan rustige weg, in centrum en in woonwijk
Tuin
Achtertuin en voortuin
Achtertuin
37 m² (7m diep en 5,35m breed)

Voorzieningen in de buurt

Boodschappen0,2 km
Grote supermarkt0,3 km
Cafetaria0,3 km
Restaurant0,3 km
Huisarts0,2 km
Ziekenhuis2,8 km
Kinderdagverblijf0,3 km
BSO0,3 km
Alle voorzieningen in Tuinstadwijk

Binnenkijken bij Watergeuzenstraat 31 te Leiden

Meer meldingen in deze omgeving

Binnenkijken bij
Vrijdag 14-11-2025
Prinses Wilhelminastraat 24, 2313AW Leiden

Binnenkijken bij
Vrijdag 14-11-2025
Bloemistenlaan 9, 2313BA Leiden

Nieuw bedrijf
November 2025
Gerrit van der Laanstraat 9, 2313XT Leiden

Nieuw bedrijf
November 2025
Seringenstraat 39A, 2313VS Leiden

Nieuw bedrijf
November 2025
Pioenstraat 12A, 2313BM Leiden

Nieuw bedrijf
November 2025
Bloemistenlaan 12, 2313BA Leiden

Nieuw bedrijf
November 2025
Witte Singel 103B, 2313AA Leiden

Binnenkijken bij
Dinsdag 11-11-2025
Stadhouderslaan 17, 2313AB Leiden

Direct een e-mail ontvangen bij nieuwe meldingen in deze regio?

Meld je dan GRATIS aan voor de Oozo Alert service voor Tuinstadwijk

Instellen

Meer nieuws in Tuinstadwijk

Weten hoe eenvoudig het is om af te vallen? Zonder pillen en smeersels en zonder je in het zweet te werken!
Kijk op eenvoudig-afvallen.nl

© 2012 - 2025 OOZO.nl - info@oozo.nl - Gegevens verwijderen? | Disclaimer | Privacy statement