Woning Virulypad 57 Leiden

Virulypad 57, 2316ZT Leiden

Ontvang updates voor Stationskwartier

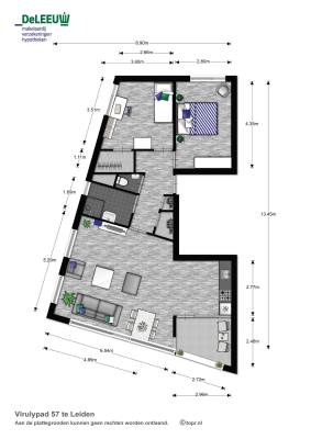
Het adres van deze woning is Virulypad 57 te Leiden. Het pand heeft een oppervlakte van 77m² en heeft 3 kamers kamers waarvan 3 slaapkamers. De geschatte waarde van deze woning is € 200.000.

Bekijk alle woningen in Stationskwartier

Gegevens van

Geschatte waarde
€ 200.000
Oppervlakte
77 m² woonopp. m2
Aantal kamers
3 kamers

Voorzieningen in de buurt

Boodschappen0,2 km
Grote supermarkt0,5 km
Cafetaria0,5 km
Restaurant0,3 km
Huisarts1,0 km
Ziekenhuis1,0 km
Kinderdagverblijf0,3 km
BSO0,6 km
Alle voorzieningen in Stationskwartier

Binnenkijken bij Virulypad 57 te Leiden

Meer meldingen in deze omgeving

112 melding
Maandag 17-11-2025 om 08:10
Stationsplein, Leiden

Nieuw bedrijf
November 2025
Maredijk 131E, 2316VX Leiden

Nieuw bedrijf
November 2025
Maredijk 149, 2316VX Leiden

112 melding
Zaterdag 15-11-2025 om 22:43
Ypenburgbocht, 2316WB Leiden

112 melding
Zaterdag 15-11-2025 om 22:43
Ypenburgbocht, 2316WB Leiden

112 melding
Zaterdag 15-11-2025 om 20:47
Stationsweg, Leiden

112 melding
Zaterdag 15-11-2025 om 20:20
Stationsplein, Leiden

Nieuw bedrijf
November 2025
Ypenburgbocht 9430, 2316WB Leiden

Direct een e-mail ontvangen bij nieuwe meldingen in deze regio?

Meld je dan GRATIS aan voor de Oozo Alert service voor Stationskwartier

Instellen

Meer nieuws in Stationskwartier

Weten hoe eenvoudig het is om af te vallen? Zonder pillen en smeersels en zonder je in het zweet te werken!
Kijk op eenvoudig-afvallen.nl

© 2012 - 2025 OOZO.nl - info@oozo.nl - Gegevens verwijderen? | Disclaimer | Privacy statement