Woning Sonia Gaskellstraat 4 Leiden

Sonia Gaskellstraat 4, 2331BJ Leiden

Ontvang updates voor Dobbewijk-Noord

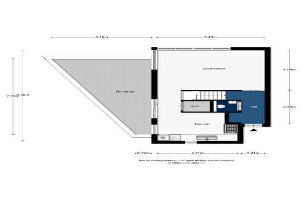
Het adres van deze woning uit 1992 is Sonia Gaskellstraat 4 te Leiden. Het pand heeft een oppervlakte van 105m² en heeft 4 kamers kamers waarvan 3 slaapkamers. De geschatte waarde van deze woning is € 249.900.

Bekijk alle woningen in Dobbewijk-Noord

Gegevens van Maisonnette (appartement)

Bouwjaar
1992
Geschatte waarde
€ 249.900
Oppervlakte
105 m2
Inhoud
358 m3
Aantal kamers
4 kamers
Slaapkamers
3
Soort bouw
Bestaande bouw
Ligging
In woonwijk en vrij uitzicht

Voorzieningen in de buurt

Boodschappen0,3 km
Grote supermarkt0,6 km
Cafetaria0,3 km
Restaurant0,6 km
Huisarts0,4 km
Ziekenhuis3,5 km
Kinderdagverblijf0,4 km
BSO0,3 km
Alle voorzieningen in Dobbewijk-Noord

Binnenkijken bij Sonia Gaskellstraat 4 te Leiden

Meer meldingen in deze omgeving

112 melding
Zondag 14-12-2025 om 23:34
Joke Smitstraat, Leiden

112 melding
Donderdag 11-12-2025 om 10:00
Top Naeffstraat, 2331HD Leiden

112 melding
Woensdag 10-12-2025 om 16:02
Groenrand, 2331HG Leiden

112 melding
Woensdag 10-12-2025 om 08:49
Theda Mansholtstraat, Leiden

112 melding
Maandag 8-12-2025 om 15:35
Theda Mansholtstraat, Leiden

Nieuw bedrijf
December 2025
Etta Palmstraat 17, 2331ME Leiden

112 melding
Dinsdag 2-12-2025 om 04:28
Groenrand, 2331HG Leiden

112 melding
Zaterdag 29-11-2025 om 05:25
Stevensbloem, Leiden

Direct een e-mail ontvangen bij nieuwe meldingen in deze regio?

Meld je dan GRATIS aan voor de Oozo Alert service voor Dobbewijk-Noord

Instellen

Meer nieuws in Dobbewijk-Noord

Weten hoe eenvoudig het is om af te vallen? Zonder pillen en smeersels en zonder je in het zweet te werken!
Kijk op eenvoudig-afvallen.nl

© 2012 - 2025 OOZO.nl - info@oozo.nl - Gegevens verwijderen? | Disclaimer | Privacy statement