Woning Sara de Bronovoplein 53 Leiden

Sara de Bronovoplein 53, 2331PK Leiden

Ontvang updates voor Dobbewijk-Zuid

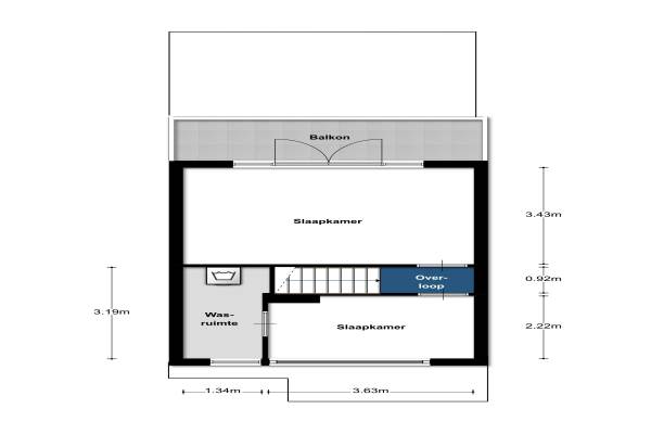
Het adres van deze woning uit 1991 is Sara de Bronovoplein 53 te Leiden. Het pand heeft een oppervlakte van 139m² en een perceeloppervlakte van 140m² en heeft 8 kamers kamers waarvan 5 slaapkamers. De geschatte waarde van deze woning is € 329.000.

Bekijk alle woningen in Dobbewijk-Zuid

Gegevens van Eengezinswoning, tussenwoning

Bouwjaar
1991
Geschatte waarde
€ 329.000
Oppervlakte
139 m2
Inhoud
449 m3
Aantal kamers
8 kamers
Slaapkamers
5
Soort bouw
Bestaande bouw
Eigendomssituatie
Volle eigendom
Ligging
In woonwijk
Tuin
Achtertuin
Achtertuin
55 m² (10,6m diep en 5,2m breed)

Voorzieningen in de buurt

Boodschappen0,5 km
Grote supermarkt0,9 km
Cafetaria0,6 km
Restaurant0,7 km
Huisarts1,0 km
Ziekenhuis3,8 km
Kinderdagverblijf0,7 km
BSO0,4 km
Alle voorzieningen in Dobbewijk-Zuid

Binnenkijken bij Sara de Bronovoplein 53 te Leiden

Meer meldingen in deze omgeving

112 melding
Vrijdag 19-12-2025 om 03:54
Amsterdamse Jofferspad, Leiden

Nieuw bedrijf
December 2025
Henriëtte van der Meystraat 47, 2331SG Leiden

Nieuw bedrijf
December 2025
Anna Teding van Berkhoutstraat 28, 2331NR Leiden

112 melding
Zaterdag 13-12-2025 om 08:10
Catharina van Renneskade, 2331LM Leiden

112 melding
Zaterdag 13-12-2025 om 02:08
Alexandrine Tinneplein, Leiden

112 melding
Vrijdag 12-12-2025 om 14:04
Suze Robertsonstraat, 2331LK Leiden

112 melding
Vrijdag 12-12-2025 om 14:02
Suze Robertsonstraat, 2331LK Leiden

112 melding
Donderdag 11-12-2025 om 10:32
Rie Cramerlaan, 2331LA Leiden

Direct een e-mail ontvangen bij nieuwe meldingen in deze regio?

Meld je dan GRATIS aan voor de Oozo Alert service voor Dobbewijk-Zuid

Instellen

Meer nieuws in Dobbewijk-Zuid

Weten hoe eenvoudig het is om af te vallen? Zonder pillen en smeersels en zonder je in het zweet te werken!
Kijk op eenvoudig-afvallen.nl

© 2012 - 2025 OOZO.nl - info@oozo.nl - Gegevens verwijderen? | Disclaimer | Privacy statement