Woning Brugwacht 132 Leiderdorp

Brugwacht 132, 2353DP Leiderdorp

Ontvang updates voor Leyhof

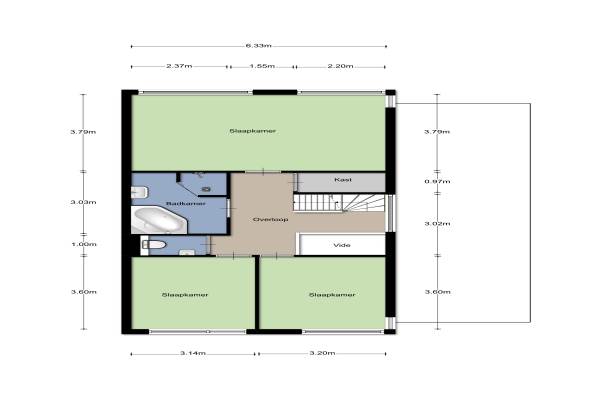
Het adres van deze woning uit 1997 is Brugwacht 132 te Leiderdorp. Het pand heeft een oppervlakte van 200m² en een perceeloppervlakte van 288m² en heeft 5 kamers kamers waarvan 4 slaapkamers. De geschatte waarde van deze woning is € 849.000.

Bekijk alle woningen in Leyhof

Gegevens van Villa, geschakelde woning

Bouwjaar
1997
Geschatte waarde
€ 849.000
Oppervlakte
200 m2
Inhoud
818 m3
Aantal kamers
5 kamers
Slaapkamers
4
Badkamers
1 badkamer en 2 aparte toiletten
Soort bouw
Bestaande bouw
Eigendomssituatie
Volle eigendom
Ligging
Aan water, aan rustige weg, in woonwijk, vrij uitzicht en aan vaarwater
Tuin
Achtertuin en voortuin
Achtertuin
120 m² (10m diep en 12m breed)

Voorzieningen in de buurt

Boodschappen1,6 km
Grote supermarkt0,4 km
Cafetaria1,5 km
Restaurant1,4 km
Huisarts1,5 km
Ziekenhuis3,0 km
Kinderdagverblijf0,4 km
BSO0,4 km
Alle voorzieningen in Leyhof

Binnenkijken bij Brugwacht 132 te Leiderdorp

Meer meldingen in deze omgeving

Nieuw bedrijf
December 2025
Machteld van Brabantplaats 28, 2353DL Leiderdorp

112 melding
Dinsdag 2-12-2025 om 13:39
Jacoba van Beierenlaan, Leiderdorp

112 melding
Dinsdag 2-12-2025 om 13:06
Jacoba van Beierenlaan, Leiderdorp

112 melding
Zondag 30-11-2025 om 01:41
Burchtplein, 2353DA Leiderdorp

112 melding
Donderdag 27-11-2025 om 19:58
Dijkwacht, Leiderdorp

112 melding
Zondag 23-11-2025 om 10:31
Brugwacht, Leiderdorp

112 melding
Woensdag 19-11-2025 om 12:16
Elisabeth van Engelandlaan, 2353EE Leiderdorp

Binnenkijken bij
Dinsdag 18-11-2025
Brugwacht 30, 2353DM Leiderdorp

Direct een e-mail ontvangen bij nieuwe meldingen in deze regio?

Meld je dan GRATIS aan voor de Oozo Alert service voor Leyhof

Instellen

Meer nieuws in Leyhof

Weten hoe eenvoudig het is om af te vallen? Zonder pillen en smeersels en zonder je in het zweet te werken!
Kijk op eenvoudig-afvallen.nl

© 2012 - 2025 OOZO.nl - info@oozo.nl - Gegevens verwijderen? | Disclaimer | Privacy statement