Woning Brederode 136 Leidschendam

Brederode 136, 2261HM Leidschendam

Ontvang updates voor Duivenvoorde

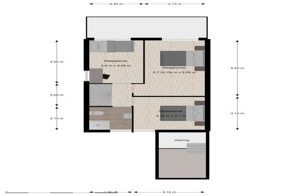
Het adres van deze woning uit 1978 is Brederode 136 te Leidschendam. Het pand heeft een oppervlakte van 125m² en een perceeloppervlakte van 174m² en heeft 5 kamers kamers waarvan 4 slaapkamers. De geschatte waarde van deze woning is € 275.000.

Bekijk alle woningen in Duivenvoorde

Gegevens van Eengezinswoning, eindwoning

Bouwjaar
1978
Geschatte waarde
€ 275.000
Oppervlakte
125 m2
Inhoud
375 m3
Aantal kamers
5 kamers
Slaapkamers
4
Badkamers
1 badkamer en 1 apart toilet
Soort bouw
Bestaande bouw
Eigendomssituatie
Volle eigendom
Ligging
Aan rustige weg en in woonwijk
Tuin
Achtertuin en voortuin
Achtertuin
52 m² (9,5m diep en 5,5m breed)

Voorzieningen in de buurt

Boodschappen0,7 km
Grote supermarkt1,1 km
Cafetaria1,2 km
Restaurant1,3 km
Huisarts1,0 km
Ziekenhuis1,8 km
Kinderdagverblijf0,8 km
BSO1,2 km
Alle voorzieningen in Duivenvoorde

Binnenkijken bij Brederode 136 te Leidschendam

Meer meldingen in deze omgeving

112 melding
Zondag 26-4-2026 om 18:35
Duivenvoorde, Leidschendam

112 melding
Zondag 26-4-2026 om 08:41
Wildenborch, Leidschendam

112 melding
Zaterdag 25-4-2026 om 06:42
Kastelenring, Leidschendam

112 melding
Vrijdag 24-4-2026 om 14:18
Duivenvoorde, Leidschendam

112 melding
Donderdag 23-4-2026 om 20:42
De Haar, Leidschendam

112 melding
Dinsdag 21-4-2026 om 11:54
Doornenburg, Leidschendam

112 melding
Zondag 19-4-2026 om 11:47
Doornenburg, Leidschendam

112 melding
Zaterdag 18-4-2026 om 17:11
Teylingen, Leidschendam

Direct een e-mail ontvangen bij nieuwe meldingen in deze regio?

Meld je dan GRATIS aan voor de Oozo Alert service voor Duivenvoorde

Instellen

Meer nieuws in Duivenvoorde

Weten hoe eenvoudig het is om af te vallen? Zonder pillen en smeersels en zonder je in het zweet te werken!
Kijk op eenvoudig-afvallen.nl

© 2012 - 2026 OOZO.nl - info@oozo.nl - Gegevens verwijderen? | Disclaimer | Privacy statement