Woning Kamp 1573 Lelystad

Kamp 15-73, 8225DA Lelystad

Ontvang updates voor Kamp

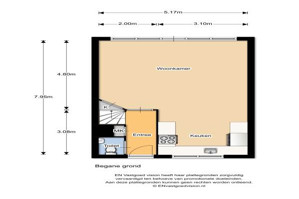
Het adres van deze woning uit 1982 is Kamp 1573 te Lelystad. Het pand heeft een oppervlakte van 110m² en een perceeloppervlakte van 141m² en heeft 5 kamers kamers waarvan 4 slaapkamers. De geschatte waarde van deze woning is € 140.500.

Bekijk alle woningen in Kamp

Gegevens van Eengezinswoning, tussenwoning

Bouwjaar
1982
Geschatte waarde
€ 140.500
Oppervlakte
110 m2
Inhoud
325 m3
Aantal kamers
5 kamers
Slaapkamers
4
Badkamers
1 badkamer en 1 apart toilet
Soort bouw
Bestaande bouw
Eigendomssituatie
Volle eigendom
Ligging
Aan rustige weg, in woonwijk en vrij uitzicht
Tuin
Achtertuin en voortuin
Achtertuin
66 m² (12m diep en 5,5m breed)

Voorzieningen in de buurt

Boodschappen0,7 km
Grote supermarkt0,6 km
Cafetaria0,7 km
Restaurant0,6 km
Huisarts0,6 km
Ziekenhuis1,0 km
Kinderdagverblijf0,5 km
BSO0,5 km
Alle voorzieningen in Kamp

Binnenkijken bij Kamp 1573 te Lelystad

Meer meldingen in deze omgeving

112 melding
Donderdag 11-12-2025 om 12:07
Kamp, 8225DA Lelystad

112 melding
Donderdag 11-12-2025 om 12:07
Kamp, 8225DA Lelystad

Nieuw bedrijf
December 2025
Kamp 39 36, 8225HJ Lelystad

Binnenkijken bij
Zaterdag 6-12-2025
Kamp 1024, 8225GE Lelystad

112 melding
Vrijdag 5-12-2025 om 12:29
Kamp, 8225DM Lelystad

112 melding
Vrijdag 5-12-2025 om 09:09
Kamp, 8225DM Lelystad

112 melding
Vrijdag 5-12-2025 om 09:09
Kamp, 8225DM Lelystad

Binnenkijken bij
Donderdag 4-12-2025
Kamp 2632, 8225EH Lelystad

Direct een e-mail ontvangen bij nieuwe meldingen in deze regio?

Meld je dan GRATIS aan voor de Oozo Alert service voor Kamp

Instellen

Meer nieuws in Kamp

Weten hoe eenvoudig het is om af te vallen? Zonder pillen en smeersels en zonder je in het zweet te werken!
Kijk op eenvoudig-afvallen.nl

© 2012 - 2025 OOZO.nl - info@oozo.nl - Gegevens verwijderen? | Disclaimer | Privacy statement