Woning Jol 21 Lelystad

Jol 21, 8243GJ Lelystad

Ontvang updates voor Jol

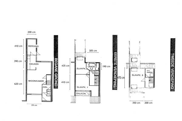
Het adres van deze woning uit 1980 is Jol 21 te Lelystad. Het pand heeft een oppervlakte van 125m² en een perceeloppervlakte van 200m² en heeft 4 kamers kamers waarvan 3 slaapkamers. De geschatte waarde van deze woning is € 165.000.

Bekijk alle woningen in Jol

Gegevens van Eengezinswoning, tussenwoning

Bouwjaar
1980
Geschatte waarde
€ 165.000
Oppervlakte
125 m2
Inhoud
320 m3
Aantal kamers
4 kamers
Slaapkamers
3
Soort bouw
Bestaande bouw
Ligging
Aan park, aan rustige weg en in woonwijk
Tuin
Achtertuin
Achtertuin
96 m² (16m diep en 6m breed)

Voorzieningen in de buurt

Boodschappen0,4 km
Grote supermarkt0,4 km
Cafetaria0,4 km
Restaurant0,5 km
Huisarts0,5 km
Ziekenhuis2,8 km
Kinderdagverblijf0,6 km
BSO0,6 km
Alle voorzieningen in Jol

Binnenkijken bij Jol 21 te Lelystad

Meer meldingen in deze omgeving

112 melding
Donderdag 5-3-2026 om 11:25
Jol, 8243HR Lelystad

112 melding
Woensdag 4-3-2026 om 17:39
Jol, 8243HS Lelystad

112 melding
Woensdag 4-3-2026 om 17:39
Jol, 8243HS Lelystad

112 melding
Woensdag 4-3-2026 om 13:31
Jol, 8243GN Lelystad

112 melding
Woensdag 4-3-2026 om 11:16
Jol 24, 8243GR Lelystad

112 melding
Woensdag 4-3-2026 om 07:54
Jol, 8243HZ Lelystad

112 melding
Woensdag 4-3-2026 om 07:41
Jol 24, 8243GR Lelystad

112 melding
Woensdag 4-3-2026 om 07:41
Jol 24, 8243GR Lelystad

Direct een e-mail ontvangen bij nieuwe meldingen in deze regio?

Meld je dan GRATIS aan voor de Oozo Alert service voor Jol

Instellen

Meer nieuws in Jol

Weten hoe eenvoudig het is om af te vallen? Zonder pillen en smeersels en zonder je in het zweet te werken!
Kijk op eenvoudig-afvallen.nl

© 2012 - 2026 OOZO.nl - info@oozo.nl - Gegevens verwijderen? | Disclaimer | Privacy statement