Woning Koningin Sophielaan 11 Leusden

Koningin Sophielaan 11, 3832AC Leusden

Ontvang updates voor Kern Leusden-Zuid

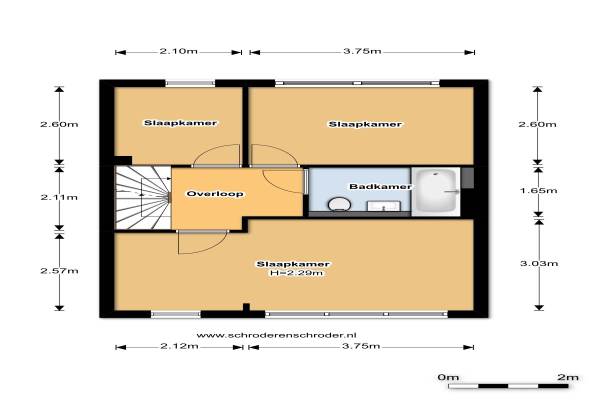
Het adres van deze woning uit 1968 is Koningin Sophielaan 11 te Leusden. Het pand heeft een oppervlakte van 132m² en een perceeloppervlakte van 210m² en heeft 5 kamers kamers waarvan 4 slaapkamers. De geschatte waarde van deze woning is € 345.000.

Bekijk alle woningen in Kern Leusden-Zuid

Gegevens van Eengezinswoning, tussenwoning

Bouwjaar
1968
Geschatte waarde
€ 345.000
Oppervlakte
132 m2
Inhoud
422 m3
Aantal kamers
5 kamers
Slaapkamers
4
Badkamers
1 badkamer en 1 apart toilet
Soort bouw
Bestaande bouw
Eigendomssituatie
Volle eigendom
Ligging
In woonwijk
Tuin
Achtertuin en voortuin
Achtertuin
57 m² (9,5m diep en 6m breed)

Voorzieningen in de buurt

Boodschappen1,0 km
Grote supermarkt1,0 km
Cafetaria1,0 km
Restaurant0,8 km
Huisarts1,0 km
Ziekenhuis3,1 km
Kinderdagverblijf1,0 km
BSO1,0 km
Alle voorzieningen in Kern Leusden-Zuid

Binnenkijken bij Koningin Sophielaan 11 te Leusden

Meer meldingen in deze omgeving

Binnenkijken bij
Donderdag 9-10-2025
Van Diepenheim Scheltuslaan 5, 3832EE Leusden

Nieuw bedrijf
Oktober 2025
Koningin Julianalaan 55, 3832BB Leusden

Binnenkijken bij
Donderdag 2-10-2025
Prinses Irenelaan 65, 3832CB Leusden

Binnenkijken bij
Vrijdag 26-9-2025
Van Boetzelaerlaan 22, 3832AM Leusden

Binnenkijken bij
Vrijdag 19-9-2025
Koningin Wilhelminalaan 22, 3832AW Leusden

Binnenkijken bij
Vrijdag 19-9-2025
Maanweg 3, 3832GA Leusden

Binnenkijken bij
Vrijdag 19-9-2025
Koningin Wilhelminalaan 6, 3832AW Leusden

Nieuw bedrijf
September 2025
Treekerweg 28, 3832GX Leusden

Direct een e-mail ontvangen bij nieuwe meldingen in deze regio?

Meld je dan GRATIS aan voor de Oozo Alert service voor Kern Leusden-Zuid

Instellen

Meer nieuws in Kern Leusden-Zuid

Weten hoe eenvoudig het is om af te vallen? Zonder pillen en smeersels en zonder je in het zweet te werken!
Kijk op eenvoudig-afvallen.nl

© 2012 - 2025 OOZO.nl - info@oozo.nl - Gegevens verwijderen? | Disclaimer | Privacy statement