Woning Koningin Emmalaan 12 Leusden

Koningin Emmalaan 12, 3832AH Leusden

Ontvang updates voor Kern Leusden-Zuid

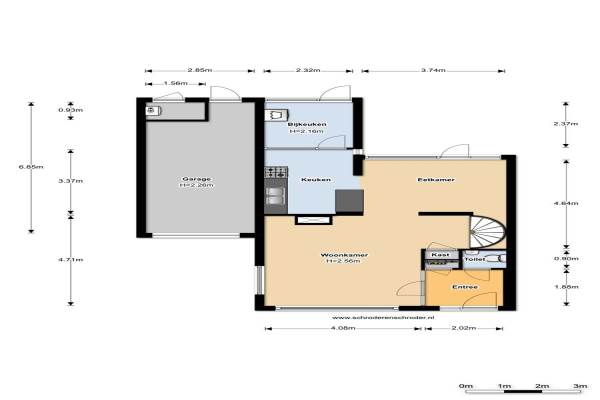
Het adres van deze woning uit 1965 is Koningin Emmalaan 12 te Leusden. Het pand heeft een oppervlakte van 146m² en een perceeloppervlakte van 305m² en heeft 5 kamers kamers waarvan 4 slaapkamers. De geschatte waarde van deze woning is € 399.500.

Bekijk alle woningen in Kern Leusden-Zuid

Gegevens van Eengezinswoning, hoekwoning

Bouwjaar
1965
Geschatte waarde
€ 399.500
Oppervlakte
146 m2
Inhoud
482 m3
Aantal kamers
5 kamers
Slaapkamers
4
Badkamers
1 badkamer en 1 apart toilet
Soort bouw
Bestaande bouw
Eigendomssituatie
Volle eigendom
Ligging
Aan rustige weg
Tuin
Achtertuin
Achtertuin
100 m² (20m diep en 5m breed)

Voorzieningen in de buurt

Boodschappen1,0 km
Grote supermarkt1,0 km
Cafetaria1,0 km
Restaurant0,8 km
Huisarts1,0 km
Ziekenhuis3,1 km
Kinderdagverblijf1,0 km
BSO1,0 km
Alle voorzieningen in Kern Leusden-Zuid

Binnenkijken bij Koningin Emmalaan 12 te Leusden

Meer meldingen in deze omgeving

Nieuw bedrijf
Maart 2026
Van Hardenbroeklaan 36, 3832CL Leusden

Binnenkijken bij
Zaterdag 14-2-2026
Koningin Wilhelminalaan 19, 3832AV Leusden

112 melding
Zaterdag 7-2-2026 om 18:13
Prins Bernhardlaan, 3832AT Leusden

Binnenkijken bij
Zaterdag 7-2-2026
Anna van Saksenlaan 4, 3832AD Leusden

Binnenkijken bij
Zaterdag 7-2-2026
Prins Frederiklaan 6F, 3832GD Leusden

Binnenkijken bij
Donderdag 5-2-2026
Van Boetzelaerlaan 37, 3832AL Leusden

Binnenkijken bij
Woensdag 28-1-2026
Van Boetzelaerlaan 6, 3832AM Leusden

Nieuw bedrijf
Januari 2026
Van Hardenbroeklaan 22, 3832CL Leusden

Direct een e-mail ontvangen bij nieuwe meldingen in deze regio?

Meld je dan GRATIS aan voor de Oozo Alert service voor Kern Leusden-Zuid

Instellen

Meer nieuws in Kern Leusden-Zuid

Weten hoe eenvoudig het is om af te vallen? Zonder pillen en smeersels en zonder je in het zweet te werken!
Kijk op eenvoudig-afvallen.nl

© 2012 - 2026 OOZO.nl - info@oozo.nl - Gegevens verwijderen? | Disclaimer | Privacy statement