Woning Charlotte van Bourbonlaan 11 Leusden

Charlotte van Bourbonlaan 11, 3832AJ Leusden

Ontvang updates voor Kern Leusden-Zuid

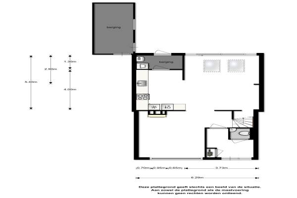
Het adres van deze woning uit 1969 is Charlotte van Bourbonlaan 11 te Leusden. Het pand heeft een oppervlakte van 140m² en een perceeloppervlakte van 167m² en heeft 6 kamers kamers waarvan 5 slaapkamers. De geschatte waarde van deze woning is € 345.000.

Bekijk alle woningen in Kern Leusden-Zuid

Gegevens van Eengezinswoning, tussenwoning

Bouwjaar
1969
Geschatte waarde
€ 345.000
Oppervlakte
140 m2
Inhoud
495 m3
Aantal kamers
6 kamers
Slaapkamers
5
Badkamers
1 badkamer en 2 aparte toiletten
Soort bouw
Bestaande bouw
Eigendomssituatie
Volle eigendom
Ligging
Aan rustige weg en in woonwijk
Tuin
Achtertuin
Achtertuin
36 m² (6m diep en 6m breed)

Voorzieningen in de buurt

Boodschappen1,0 km
Grote supermarkt1,0 km
Cafetaria1,0 km
Restaurant0,8 km
Huisarts1,0 km
Ziekenhuis3,1 km
Kinderdagverblijf1,0 km
BSO1,0 km
Alle voorzieningen in Kern Leusden-Zuid

Binnenkijken bij Charlotte van Bourbonlaan 11 te Leusden

Meer meldingen in deze omgeving

Nieuw bedrijf
Maart 2026
Van Hardenbroeklaan 36, 3832CL Leusden

Binnenkijken bij
Zaterdag 14-2-2026
Koningin Wilhelminalaan 19, 3832AV Leusden

112 melding
Zaterdag 7-2-2026 om 18:13
Prins Bernhardlaan, 3832AT Leusden

Binnenkijken bij
Zaterdag 7-2-2026
Anna van Saksenlaan 4, 3832AD Leusden

Binnenkijken bij
Zaterdag 7-2-2026
Prins Frederiklaan 6F, 3832GD Leusden

Binnenkijken bij
Donderdag 5-2-2026
Van Boetzelaerlaan 37, 3832AL Leusden

Binnenkijken bij
Woensdag 28-1-2026
Van Boetzelaerlaan 6, 3832AM Leusden

Nieuw bedrijf
Januari 2026
Van Hardenbroeklaan 22, 3832CL Leusden

Direct een e-mail ontvangen bij nieuwe meldingen in deze regio?

Meld je dan GRATIS aan voor de Oozo Alert service voor Kern Leusden-Zuid

Instellen

Meer nieuws in Kern Leusden-Zuid

Weten hoe eenvoudig het is om af te vallen? Zonder pillen en smeersels en zonder je in het zweet te werken!
Kijk op eenvoudig-afvallen.nl

© 2012 - 2026 OOZO.nl - info@oozo.nl - Gegevens verwijderen? | Disclaimer | Privacy statement