Woning De Spijlen 10 Leusden

De Spijlen 10, 3832JA Leusden

Ontvang updates voor Tabaksteeg

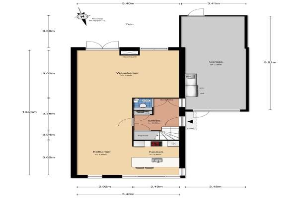
Het adres van deze woning uit 2008 is De Spijlen 10 te Leusden. Het pand heeft een oppervlakte van 152m² en een perceeloppervlakte van 250m² en heeft 4 kamers kamers waarvan 3 slaapkamers. De geschatte waarde van deze woning is € 569.000.

Bekijk alle woningen in Tabaksteeg

Gegevens van Eengezinswoning, geschakelde 2-onder-1-kapwoning

Bouwjaar
2008
Geschatte waarde
€ 569.000
Oppervlakte
152 m2
Inhoud
398 m3
Aantal kamers
4 kamers
Slaapkamers
3
Badkamers
1 badkamer en 2 aparte toiletten
Soort bouw
Bestaande bouw
Eigendomssituatie
Volle eigendom
Ligging
In woonwijk
Tuin
Achtertuin en voortuin
Achtertuin
80 m² (10m diep en 8m breed)

Voorzieningen in de buurt

Boodschappen0,5 km
Grote supermarkt0,5 km
Cafetaria0,5 km
Restaurant0,5 km
Huisarts0,5 km
Ziekenhuis2,9 km
Kinderdagverblijf0,5 km
BSO0,5 km
Alle voorzieningen in Tabaksteeg

Binnenkijken bij De Spijlen 10 te Leusden

Meer meldingen in deze omgeving

Nieuw bedrijf
Maart 2026
Karel Brouwerhof 8, 3832LN Leusden

Binnenkijken bij
Woensdag 25-2-2026
Bab van Garderenstraat 1, 3832LJ Leusden

Nieuw bedrijf
Februari 2026
Karel Brouwerhof 22, 3832LN Leusden

Nieuw bedrijf
Februari 2026
Karel van Ginkelstraat 27, 3832LH Leusden

Binnenkijken bij
Dinsdag 3-2-2026
Maximaplein 6, 3832JS Leusden

Binnenkijken bij
Zondag 1-2-2026
Genthoek 8, 3832KA Leusden

Binnenkijken bij
Vrijdag 30-1-2026
Genthoek 39, 3832KA Leusden

Nieuw bedrijf
Januari 2026
Damreesche Spoor 22, 3832KR Leusden

Direct een e-mail ontvangen bij nieuwe meldingen in deze regio?

Meld je dan GRATIS aan voor de Oozo Alert service voor Tabaksteeg

Instellen

Meer nieuws in Tabaksteeg

Weten hoe eenvoudig het is om af te vallen? Zonder pillen en smeersels en zonder je in het zweet te werken!
Kijk op eenvoudig-afvallen.nl

© 2012 - 2026 OOZO.nl - info@oozo.nl - Gegevens verwijderen? | Disclaimer | Privacy statement