Woning Boutlaan 6 Herwijnen

Boutlaan 6, 4171DE Herwijnen

Ontvang updates voor Verspreide huizen Herwijnen

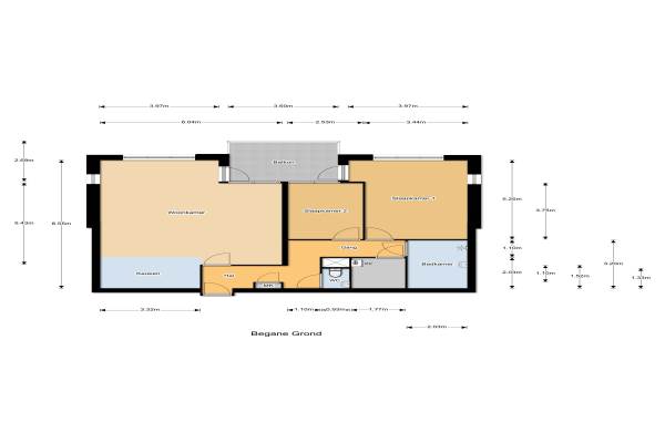
Het adres van deze woning uit 2011 is Boutlaan 6 te Herwijnen. Het pand heeft een oppervlakte van 98m² en heeft 3 kamers kamers waarvan 2 slaapkamers. De geschatte waarde van deze woning is € 260.000.

Bekijk alle woningen in Verspreide huizen Herwijnen

Gegevens van Portiekwoning (appartement)

Bouwjaar
2011
Geschatte waarde
€ 260.000
Oppervlakte
98 m2
Inhoud
250 m3
Aantal kamers
3 kamers
Slaapkamers
2
Badkamers
1 badkamer en 1 apart toilet
Soort bouw
Bestaande bouw
Eigendomssituatie
Volle eigendom
Ligging
In woonwijk en vrij uitzicht
Tuin
Zonneterras

Voorzieningen in de buurt

Binnenkijken bij Boutlaan 6 te Herwijnen

Meer meldingen in deze omgeving

112 melding
Zondag 15-3-2026 om 10:49
4171LB Herwijnen

Binnenkijken bij
Donderdag 12-2-2026
Vervoornlaan 15, 4171DA Herwijnen

112 melding
Donderdag 5-2-2026 om 19:10
Biermanlaan, 4171DG Herwijnen

112 melding
Donderdag 5-2-2026 om 19:08
Biermanlaan, 4171DG Herwijnen

112 melding
Zaterdag 3-1-2026 om 17:20
Vervoornlaan, 4171DB Herwijnen

Nieuw bedrijf
Januari 2026
Zeek 4b, 4171LH Herwijnen

112 melding
Woensdag 31-12-2025 om 21:24
Mert, 4171LB Herwijnen

112 melding
Woensdag 31-12-2025 om 19:31
Peersteeg, 4171LE Herwijnen

Direct een e-mail ontvangen bij nieuwe meldingen in deze regio?

Meld je dan GRATIS aan voor de Oozo Alert service voor Verspreide huizen Herwijnen

Instellen

Meer nieuws in Verspreide huizen Herwijnen

Weten hoe eenvoudig het is om af te vallen? Zonder pillen en smeersels en zonder je in het zweet te werken!
Kijk op eenvoudig-afvallen.nl

© 2012 - 2026 OOZO.nl - info@oozo.nl - Gegevens verwijderen? | Disclaimer | Privacy statement