Woning Johannahoeve 2 Huissen

Johannahoeve 2, 6851MX Huissen

Ontvang updates voor Uitbreiding Stad Huissen

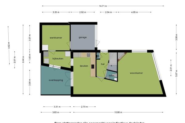
Het adres van deze woning uit 1998 is Johannahoeve 2 te Huissen. Het pand heeft een oppervlakte van 141m² en een perceeloppervlakte van 200m² en heeft 5 kamers kamers waarvan 3 slaapkamers. De geschatte waarde van deze woning is € 495.000.

Bekijk alle woningen in Uitbreiding Stad Huissen

Gegevens van Eengezinswoning, 2-onder-1-kapwoning

Bouwjaar
1998
Geschatte waarde
€ 495.000
Oppervlakte
141 m2
Inhoud
537 m3
Aantal kamers
5 kamers
Slaapkamers
3
Badkamers
1 badkamer en 1 apart toilet
Soort bouw
Bestaande bouw
Eigendomssituatie
Volle eigendom
Ligging
Aan rustige weg en in woonwijk
Tuin
Achtertuin
Achtertuin
60 m² (9,59 meter diep en 6,22 meter breed)

Voorzieningen in de buurt

Boodschappen0,6 km
Grote supermarkt0,8 km
Cafetaria0,5 km
Restaurant0,4 km
Huisarts0,6 km
Ziekenhuis5,1 km
Kinderdagverblijf0,5 km
BSO0,5 km
Alle voorzieningen in Uitbreiding Stad Huissen

Binnenkijken bij Johannahoeve 2 te Huissen

Meer meldingen in deze omgeving

Binnenkijken bij
Zaterdag 6-12-2025
Stadswal 36B, 6851CW Huissen

Binnenkijken bij
Zaterdag 6-12-2025
van Voorststraat 3D, 6851LT Huissen

112 melding
Vrijdag 5-12-2025 om 08:31
Julianastraat, Huissen

Nieuw bedrijf
December 2025
Bredestraat 49, 6851JM Huissen

Nieuw bedrijf
December 2025
M L Kingstraat 5, 6852AV Huissen

Nieuw bedrijf
December 2025
M L Kingstraat 5, 6852AV Huissen

Binnenkijken bij
Dinsdag 2-12-2025
Beatrixstraat 8, 6851KS Huissen

Nieuw bedrijf
December 2025
Churchillstraat 35, 6852AL Huissen

Direct een e-mail ontvangen bij nieuwe meldingen in deze regio?

Meld je dan GRATIS aan voor de Oozo Alert service voor Uitbreiding Stad Huissen

Instellen

Meer nieuws in Uitbreiding Stad Huissen

Weten hoe eenvoudig het is om af te vallen? Zonder pillen en smeersels en zonder je in het zweet te werken!
Kijk op eenvoudig-afvallen.nl

© 2012 - 2025 OOZO.nl - info@oozo.nl - Gegevens verwijderen? | Disclaimer | Privacy statement