Woning Bloemstraat 77 Huissen

Bloemstraat 77, 6851CR Huissen

Ontvang updates voor Uitbreiding Stad Huissen

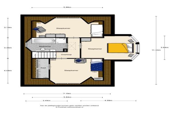
Het adres van deze woning uit 2009 is Bloemstraat 77 te Huissen. Het pand heeft een oppervlakte van 145m² en een perceeloppervlakte van 630m² en heeft 4 kamers kamers waarvan 3 slaapkamers. De geschatte waarde van deze woning is € 575.000.

Bekijk alle woningen in Uitbreiding Stad Huissen

Gegevens van Villa, vrijstaande woning

Bouwjaar
2009
Geschatte waarde
€ 575.000
Oppervlakte
145 m2
Inhoud
512 m3
Aantal kamers
4 kamers
Slaapkamers
3
Badkamers
1 badkamer en 1 apart toilet
Soort bouw
Bestaande bouw
Eigendomssituatie
Volle eigendom
Ligging
Aan rustige weg, in woonwijk en beschutte ligging
Tuin
Tuin rondom

Voorzieningen in de buurt

Boodschappen0,6 km
Grote supermarkt0,8 km
Cafetaria0,5 km
Restaurant0,4 km
Huisarts0,6 km
Ziekenhuis5,1 km
Kinderdagverblijf0,5 km
BSO0,5 km
Alle voorzieningen in Uitbreiding Stad Huissen

Binnenkijken bij Bloemstraat 77 te Huissen

Meer meldingen in deze omgeving

Nieuw bedrijf
Januari 2026
van Kleefplein 22, 6851LN Huissen

Nieuw bedrijf
Januari 2026
Vroege van Tol 39, 6851VR Huissen

Nieuw bedrijf
Januari 2026
Laaksevoetpad 10, 6851GW Huissen

Nieuw bedrijf
Januari 2026
Koperslagerstraat 60, 6851CK Huissen

112 melding
Woensdag 31-12-2025 om 14:25
Frankentaler, Huissen

112 melding
Woensdag 31-12-2025 om 14:25
Frankentaler, Huissen

Nieuw bedrijf
December 2025
Koperslagerstraat 60, 6851CK Huissen

Binnenkijken bij
Vrijdag 26-12-2025
Frees 9, 6852NH Huissen

Direct een e-mail ontvangen bij nieuwe meldingen in deze regio?

Meld je dan GRATIS aan voor de Oozo Alert service voor Uitbreiding Stad Huissen

Instellen

Meer nieuws in Uitbreiding Stad Huissen

Weten hoe eenvoudig het is om af te vallen? Zonder pillen en smeersels en zonder je in het zweet te werken!
Kijk op eenvoudig-afvallen.nl

© 2012 - 2026 OOZO.nl - info@oozo.nl - Gegevens verwijderen? | Disclaimer | Privacy statement