Woning Pater Rijkenstraat 34 Huissen

Pater Rijkenstraat 34, 6851ME Huissen

Ontvang updates voor Uitbreiding Stad Huissen

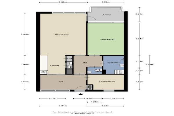
Het adres van deze woning uit 2006 is Pater Rijkenstraat 34 te Huissen. Het pand heeft een oppervlakte van 83m² en heeft 4 kamers kamers waarvan 2 slaapkamers. De geschatte waarde van deze woning is € 228.822.

Bekijk alle woningen in Uitbreiding Stad Huissen

Gegevens van Galerijflat

Bouwjaar
2006
Geschatte waarde
€ 228.822
Oppervlakte
83 m2
Inhoud
270 m3
Aantal kamers
4 kamers
Slaapkamers
2
Soort bouw
Bestaande bouw
Ligging
Aan rustige weg en in centrum

Voorzieningen in de buurt

Boodschappen0,6 km
Grote supermarkt0,8 km
Cafetaria0,5 km
Restaurant0,4 km
Huisarts0,6 km
Ziekenhuis5,1 km
Kinderdagverblijf0,5 km
BSO0,5 km
Alle voorzieningen in Uitbreiding Stad Huissen

Binnenkijken bij Pater Rijkenstraat 34 te Huissen

Meer meldingen in deze omgeving

Nieuw bedrijf
Maart 2026
Frankentaler 41, 6851VP Huissen

Binnenkijken bij
Dinsdag 17-3-2026
Hertogkade 61, 6852AA Huissen

Binnenkijken bij
Zaterdag 14-3-2026
Korte Loostraat 58, 6851MZ Huissen

Binnenkijken bij
Zaterdag 14-3-2026
Frankenstraat 56, 6851CR Huissen

Binnenkijken bij
Zaterdag 14-3-2026
Bloemstraat 2A, 6851CS Huissen

Nieuw bedrijf
Maart 2026
Helmichstraat 1, 6851CB Huissen

Nieuw bedrijf
Maart 2026
Bloemstraat 7, 6851CR Huissen

Nieuw bedrijf
Maart 2026
Kennedystraat 11a, 6852AE Huissen

Direct een e-mail ontvangen bij nieuwe meldingen in deze regio?

Meld je dan GRATIS aan voor de Oozo Alert service voor Uitbreiding Stad Huissen

Instellen

Meer nieuws in Uitbreiding Stad Huissen

Weten hoe eenvoudig het is om af te vallen? Zonder pillen en smeersels en zonder je in het zweet te werken!
Kijk op eenvoudig-afvallen.nl

© 2012 - 2026 OOZO.nl - info@oozo.nl - Gegevens verwijderen? | Disclaimer | Privacy statement