Woning It Oerd 6 Boazum

It Oerd 6, 8635LB Boazum

Ontvang updates voor Boazum

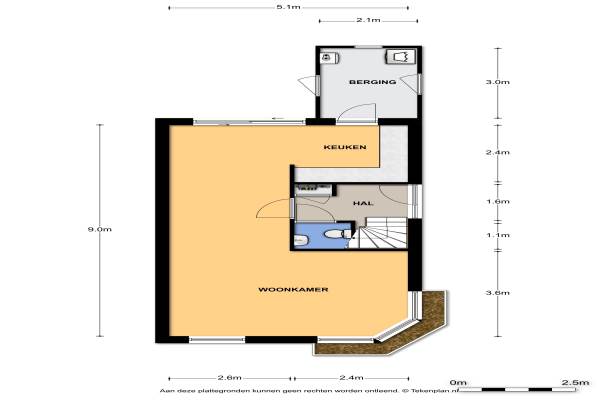
Het adres van deze woning uit 1996 is It Oerd 6 te Boazum. Het pand heeft 5 kamers kamers waarvan 4 slaapkamers. De geschatte waarde van deze woning is € 245.000.

Bekijk alle woningen in Boazum

Gegevens van Eengezinswoning, halfvrijstaande woning

Bouwjaar
1996
Geschatte waarde
€ 245.000
Oppervlakte
0 m2
Inhoud
300 m3
Aantal kamers
5 kamers
Slaapkamers
4
Badkamers
1 badkamer en 1 apart toilet
Soort bouw
Bestaande bouw
Eigendomssituatie
Volle eigendom
Ligging
Aan water, aan rustige weg, in woonwijk en aan vaarwater
Tuin
Achtertuin, voortuin en zijtuin
Achtertuin
135 m² (15m diep en 9m breed)

Voorzieningen in de buurt

Binnenkijken bij It Oerd 6 te Boazum

Meer meldingen in deze omgeving

Nieuw bedrijf
Maart 2026
Tryntsjebuorren 1, 8635MG Boazum

Nieuw bedrijf
December 2025
Dokter Miedemastrjitte 10, 8635MA Boazum

112 melding
Donderdag 18-12-2025 om 12:32
Boazum

Binnenlands nieuws
Donderdag 18-12-2025
Boazum

Binnenlands nieuws
Donderdag 18-12-2025
Boazum

Binnenlands nieuws
Donderdag 18-12-2025
Boazum

112 melding
Maandag 24-11-2025 om 20:34
Altaplein, 8635MB Boazum

112 melding
Maandag 24-11-2025 om 20:31
Altaplein, 8635MB Boazum

Direct een e-mail ontvangen bij nieuwe meldingen in deze regio?

Meld je dan GRATIS aan voor de Oozo Alert service voor Boazum

Instellen

Meer nieuws in Boazum

Weten hoe eenvoudig het is om af te vallen? Zonder pillen en smeersels en zonder je in het zweet te werken!
Kijk op eenvoudig-afvallen.nl

© 2012 - 2026 OOZO.nl - info@oozo.nl - Gegevens verwijderen? | Disclaimer | Privacy statement