Woning Idzerdaleane 8 Weidum

Idzerdaleane 8, 9024EG Weidum

Ontvang updates voor Weidum

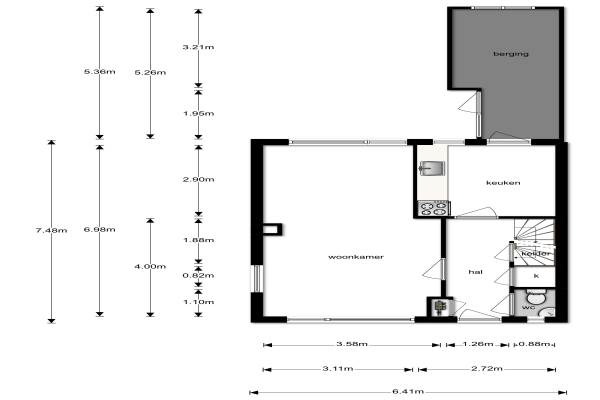
Het adres van deze woning uit 1969 is Idzerdaleane 8 te Weidum. Het pand heeft een oppervlakte van 83m² en een perceeloppervlakte van 224m² en heeft 4 kamers kamers waarvan 3 slaapkamers. De geschatte waarde van deze woning is € 123.500.

Bekijk alle woningen in Weidum

Gegevens van Eengezinswoning, hoekwoning

Bouwjaar
1969
Geschatte waarde
€ 123.500
Oppervlakte
83 m2
Inhoud
340 m3
Aantal kamers
4 kamers
Slaapkamers
3
Badkamers
1 badkamer en 1 apart toilet
Soort bouw
Bestaande bouw
Eigendomssituatie
Volle eigendom
Ligging
In woonwijk
Tuin
Achtertuin, voortuin en zijtuin
Achtertuin
65 m² (10m diep en 6,5m breed)

Voorzieningen in de buurt

Binnenkijken bij Idzerdaleane 8 te Weidum

Meer meldingen in deze omgeving

Nieuw bedrijf
December 2025
Greate Buorren 1, 9024EJ Weidum

Binnenkijken bij
Woensdag 24-12-2025
Bumaleane 2, 9024ET Weidum

Nieuw bedrijf
December 2025
Hegedyk 3a, 9024EB Weidum

112 melding
Maandag 15-12-2025 om 13:27
Skildyk, 9024EN Weidum

112 melding
Zaterdag 15-11-2025 om 11:24
Hanialeane, 9024EP Weidum

Binnenkijken bij
Dinsdag 11-11-2025
Greate Buorren 33, 9024EJ Weidum

Nieuw bedrijf
Oktober 2025
Skildyk 12, 9024EN Weidum

Binnenlands nieuws
Maandag 22-9-2025
Weidum

Direct een e-mail ontvangen bij nieuwe meldingen in deze regio?

Meld je dan GRATIS aan voor de Oozo Alert service voor Weidum

Instellen

Meer nieuws in Weidum

Weten hoe eenvoudig het is om af te vallen? Zonder pillen en smeersels en zonder je in het zweet te werken!
Kijk op eenvoudig-afvallen.nl

© 2012 - 2026 OOZO.nl - info@oozo.nl - Gegevens verwijderen? | Disclaimer | Privacy statement