Woning Lochemseweg 92 Harfsen

Lochemseweg 92, 7217RJ Harfsen

Ontvang updates voor Verspreide huizen Harfsen

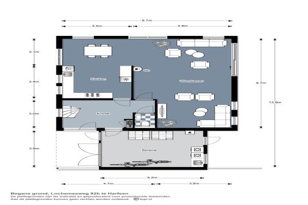
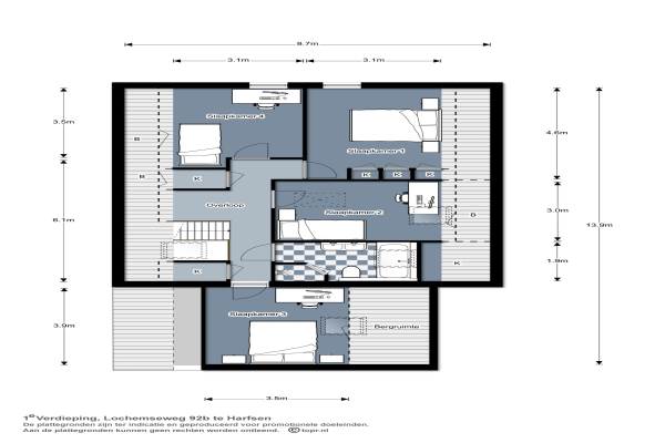
Het adres van deze woning uit 2012 is Lochemseweg 92 te Harfsen. Het pand heeft een oppervlakte van 160m² en een perceeloppervlakte van 2000m² en heeft 6 kamers kamers waarvan 4 slaapkamers. De geschatte waarde van deze woning is € 447.500.

Bekijk alle woningen in Verspreide huizen Harfsen

Gegevens van Eengezinswoning, 2-onder-1-kapwoning (hofjeswoning)

Bouwjaar
2012
Geschatte waarde
€ 447.500
Oppervlakte
160 m2
Inhoud
600 m3
Aantal kamers
6 kamers
Slaapkamers
4
Badkamers
1 badkamer en 1 apart toilet
Soort bouw
Bestaande bouw
Eigendomssituatie
Volle eigendom
Ligging
Aan rustige weg, vrij uitzicht, open ligging en buiten bebouwde kom
Tuin
Tuin rondom

Voorzieningen in de buurt

Boodschappen4,5 km
Grote supermarkt2,1 km
Cafetaria3,8 km
Restaurant1,6 km
Huisarts4,8 km
Ziekenhuis11,1 km
Kinderdagverblijf2,1 km
BSO2,1 km
Alle voorzieningen in Verspreide huizen Harfsen

Binnenkijken bij Lochemseweg 92 te Harfsen

Meer meldingen in deze omgeving

Nieuw bedrijf
December 2025
Koelerweg 3, 7217SP HARFSEN

112 melding
Woensdag 17-12-2025 om 14:34
Reeverdijk, 7217LA Harfsen

112 melding
Woensdag 17-12-2025 om 14:34
Reeverdijk, 7217LA Harfsen

Faillissement
Vrijdag 12-12-2025
Holtmark 4, 7217PP Harfsen

Binnenkijken bij
Dinsdag 25-11-2025
Het Hazenveld 56, 7217TZ Harfsen

112 melding
Maandag 3-11-2025 om 10:16
Braakhekkeweg, 7217SJ Harfsen

Nieuw bedrijf
Oktober 2025
Hazewinkelsdijk 2, 7217MB Harfsen

Nieuw bedrijf
Oktober 2025
Lochemseweg 113, 7217RB Harfsen

Direct een e-mail ontvangen bij nieuwe meldingen in deze regio?

Meld je dan GRATIS aan voor de Oozo Alert service voor Verspreide huizen Harfsen

Instellen

Meer nieuws in Verspreide huizen Harfsen

Weten hoe eenvoudig het is om af te vallen? Zonder pillen en smeersels en zonder je in het zweet te werken!
Kijk op eenvoudig-afvallen.nl

© 2012 - 2026 OOZO.nl - info@oozo.nl - Gegevens verwijderen? | Disclaimer | Privacy statement