Woning Korenbloemweg 30 Eefde

Korenbloemweg 30, 7211DP Eefde

Ontvang updates voor Eefde

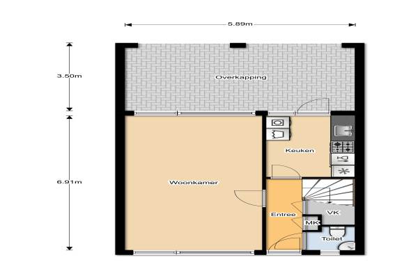
Het adres van deze woning uit 1964 is Korenbloemweg 30 te Eefde. Het pand heeft een oppervlakte van 92m² en een perceeloppervlakte van 168m² en heeft 5 kamers kamers waarvan 4 slaapkamers. De geschatte waarde van deze woning is € 185.000.

Bekijk alle woningen in Eefde

Gegevens van Eengezinswoning, tussenwoning

Bouwjaar
1964
Geschatte waarde
€ 185.000
Oppervlakte
92 m2
Inhoud
318 m3
Aantal kamers
5 kamers
Slaapkamers
4
Badkamers
1 apart toilet
Soort bouw
Bestaande bouw
Eigendomssituatie
Volle eigendom
Tuin
Achtertuin en voortuin
Achtertuin
78 m² (13m diep en 6m breed)

Voorzieningen in de buurt

Boodschappen0,9 km
Grote supermarkt0,8 km
Cafetaria0,7 km
Restaurant1,0 km
Huisarts0,5 km
Ziekenhuis6,1 km
Kinderdagverblijf0,5 km
BSO0,7 km
Alle voorzieningen in Eefde

Binnenkijken bij Korenbloemweg 30 te Eefde

Meer meldingen in deze omgeving

112 melding
Vrijdag 6-3-2026 om 16:44
het Have, Eefde

Nieuw bedrijf
Maart 2026
Kerklaan 36, 7211BK Eefde

Binnenkijken bij
Dinsdag 3-3-2026
Wunderinklaan 6, 7211AG Eefde

Nieuw bedrijf
Februari 2026
Julianalaan 30, 7211GT Eefde

112 melding
Maandag 23-2-2026 om 09:02
Havekerweg, Eefde

112 melding
Zaterdag 21-2-2026 om 18:25
Meijerinkstraat, Eefde

112 melding
Zaterdag 21-2-2026 om 18:25
Meijerinkstraat, Eefde

Binnenkijken bij
Dinsdag 17-2-2026
Schurinklaan 2, 7211DG Eefde

Direct een e-mail ontvangen bij nieuwe meldingen in deze regio?

Meld je dan GRATIS aan voor de Oozo Alert service voor Eefde

Instellen

Meer nieuws in Eefde

Weten hoe eenvoudig het is om af te vallen? Zonder pillen en smeersels en zonder je in het zweet te werken!
Kijk op eenvoudig-afvallen.nl

© 2012 - 2026 OOZO.nl - info@oozo.nl - Gegevens verwijderen? | Disclaimer | Privacy statement