Woning Stoomdijk 7 Eefde

Stoomdijk 7, 7211MK Eefde

Ontvang updates voor Verspreide huizen Eefde

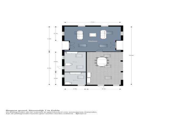
Het adres van deze woning uit 1890 is Stoomdijk 7 te Eefde. Het pand heeft een oppervlakte van 330m² en een perceeloppervlakte van 10755m² en heeft 7 kamers kamers waarvan 3 slaapkamers. De geschatte waarde van deze woning is € 875.000.

Bekijk alle woningen in Verspreide huizen Eefde

Gegevens van Woonboerderij, vrijstaande woning

Bouwjaar
1890
Geschatte waarde
€ 875.000
Oppervlakte
330 m2
Inhoud
892 m3
Aantal kamers
7 kamers
Slaapkamers
3
Badkamers
4 badkamers en 1 apart toilet
Soort bouw
Bestaande bouw
Eigendomssituatie
Volle eigendom
Ligging
Aan water, aan rustige weg, vrij uitzicht, beschutte ligging, buiten bebouwde kom en in bosrijke omgeving
Tuin
Tuin rondom

Voorzieningen in de buurt

Boodschappen2,0 km
Grote supermarkt2,0 km
Cafetaria2,0 km
Restaurant1,5 km
Huisarts1,6 km
Ziekenhuis6,7 km
Kinderdagverblijf1,5 km
BSO1,4 km
Alle voorzieningen in Verspreide huizen Eefde

Binnenkijken bij Stoomdijk 7 te Eefde

Meer meldingen in deze omgeving

Binnenkijken bij
Woensdag 10-12-2025
Zutphenseweg 112, 7211EE Eefde

Nieuw bedrijf
December 2025
Zutphenseweg 35, 7211EA EEFDE

Faillissement
Maandag 1-12-2025
Reeverdijk 3, 7211LW Eefde

Faillissement
Maandag 1-12-2025
Reeverdijk 3, 7211LW Eefde

Nieuw bedrijf
Oktober 2025
Almenseweg 5, 7211MD Eefde

Nieuw bedrijf
Oktober 2025
Almenseweg 5, 7211MD Eefde

Nieuw bedrijf
Oktober 2025
Rijsseltweg 8, 7211EP Eefde

Nieuw bedrijf
Oktober 2025
Molendijk 10, 7211MB Eefde

Direct een e-mail ontvangen bij nieuwe meldingen in deze regio?

Meld je dan GRATIS aan voor de Oozo Alert service voor Verspreide huizen Eefde

Instellen

Meer nieuws in Verspreide huizen Eefde

Weten hoe eenvoudig het is om af te vallen? Zonder pillen en smeersels en zonder je in het zweet te werken!
Kijk op eenvoudig-afvallen.nl

© 2012 - 2025 OOZO.nl - info@oozo.nl - Gegevens verwijderen? | Disclaimer | Privacy statement