Woning van Hogendorplaan 22 Lochem

van Hogendorplaan 22, 7241HG Lochem

Ontvang updates voor Lochem-Oost

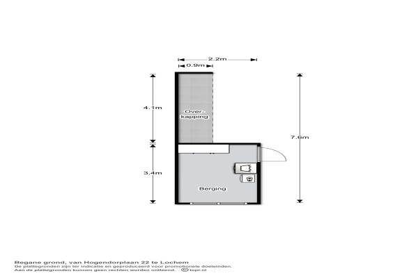
Het adres van deze woning uit 1967 is van Hogendorplaan 22 te Lochem. Het pand heeft een oppervlakte van 81m² en een perceeloppervlakte van 188m² en heeft 4 kamers kamers waarvan 3 slaapkamers. De geschatte waarde van deze woning is € 184.000.

Bekijk alle woningen in Lochem-Oost

Gegevens van Eengezinswoning, tussenwoning

Bouwjaar
1967
Geschatte waarde
€ 184.000
Oppervlakte
81 m2
Inhoud
319 m3
Aantal kamers
4 kamers
Slaapkamers
3
Badkamers
1 badkamer en 1 apart toilet
Soort bouw
Bestaande bouw
Eigendomssituatie
Volle eigendom
Ligging
In woonwijk
Tuin
Achtertuin en voortuin
Achtertuin
85 m² (13m diep en 6,5m breed)

Voorzieningen in de buurt

Boodschappen0,5 km
Grote supermarkt0,8 km
Cafetaria0,6 km
Restaurant0,6 km
Huisarts0,5 km
Ziekenhuis0,6 km
Kinderdagverblijf0,8 km
BSO0,8 km
Alle voorzieningen in Lochem-Oost

Binnenkijken bij van Hogendorplaan 22 te Lochem

Meer meldingen in deze omgeving

Binnenkijken bij
Zaterdag 13-12-2025
Oosterbleek 50B, 7241DK Lochem

Nieuw bedrijf
December 2025
Oosterbleek 42, 7241DK Lochem

Nieuw bedrijf
December 2025
Oosterbleek 42, 7241DK Lochem

Binnenkijken bij
Donderdag 4-12-2025
Emmastraat 5M, 7241EH Lochem

Nieuw bedrijf
December 2025
Dr. ten Bokkel Huininkweg 18, 7241HV Lochem

112 melding
Woensdag 19-11-2025 om 17:07
Goorseweg, 7241DC Lochem

112 melding
Woensdag 19-11-2025 om 17:07
Goorseweg, 7241DC Lochem

Nieuw bedrijf
November 2025
Prins Bernhardweg 16, 7241DH Lochem

Direct een e-mail ontvangen bij nieuwe meldingen in deze regio?

Meld je dan GRATIS aan voor de Oozo Alert service voor Lochem-Oost

Instellen

Meer nieuws in Lochem-Oost

Weten hoe eenvoudig het is om af te vallen? Zonder pillen en smeersels en zonder je in het zweet te werken!
Kijk op eenvoudig-afvallen.nl

© 2012 - 2025 OOZO.nl - info@oozo.nl - Gegevens verwijderen? | Disclaimer | Privacy statement