Woning Zwiepseweg 8 Lochem

Zwiepseweg 8, 7241GT Lochem

Ontvang updates voor Lochem-Oost

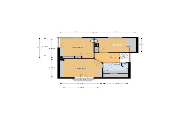
Het adres van deze woning uit 1923 is Zwiepseweg 8 te Lochem. Het pand heeft een oppervlakte van 183m² en een perceeloppervlakte van 1335m² en heeft 8 kamers kamers waarvan 3 slaapkamers. De geschatte waarde van deze woning is € 525.000.

Bekijk alle woningen in Lochem-Oost

Gegevens van Eengezinswoning, vrijstaande woning

Bouwjaar
1923
Geschatte waarde
€ 525.000
Oppervlakte
183 m2
Inhoud
812 m3
Aantal kamers
8 kamers
Slaapkamers
3
Badkamers
2 badkamers en 1 apart toilet
Soort bouw
Bestaande bouw
Eigendomssituatie
Volle eigendom
Ligging
Aan rustige weg en in woonwijk
Tuin
Tuin rondom en zonneterras

Voorzieningen in de buurt

Boodschappen0,5 km
Grote supermarkt0,8 km
Cafetaria0,6 km
Restaurant0,6 km
Huisarts0,5 km
Ziekenhuis0,6 km
Kinderdagverblijf0,8 km
BSO0,8 km
Alle voorzieningen in Lochem-Oost

Binnenkijken bij Zwiepseweg 8 te Lochem

Meer meldingen in deze omgeving

Nieuw bedrijf
December 2025
Oosterbleek 42, 7241DK Lochem

Binnenkijken bij
Zaterdag 13-12-2025
Oosterbleek 50B, 7241DK Lochem

Nieuw bedrijf
December 2025
Oosterbleek 42, 7241DK Lochem

Binnenkijken bij
Donderdag 4-12-2025
Emmastraat 5M, 7241EH Lochem

Nieuw bedrijf
December 2025
Dr. ten Bokkel Huininkweg 18, 7241HV Lochem

112 melding
Woensdag 19-11-2025 om 17:07
Goorseweg, 7241DC Lochem

112 melding
Woensdag 19-11-2025 om 17:07
Goorseweg, 7241DC Lochem

Nieuw bedrijf
November 2025
Prins Bernhardweg 16, 7241DH Lochem

Direct een e-mail ontvangen bij nieuwe meldingen in deze regio?

Meld je dan GRATIS aan voor de Oozo Alert service voor Lochem-Oost

Instellen

Meer nieuws in Lochem-Oost

Weten hoe eenvoudig het is om af te vallen? Zonder pillen en smeersels en zonder je in het zweet te werken!
Kijk op eenvoudig-afvallen.nl

© 2012 - 2025 OOZO.nl - info@oozo.nl - Gegevens verwijderen? | Disclaimer | Privacy statement