Woning Frankenlaan 12 Lochem

Frankenlaan 12, 7241HA Lochem

Ontvang updates voor Lochem-Oost

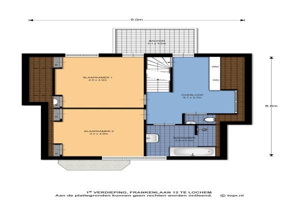
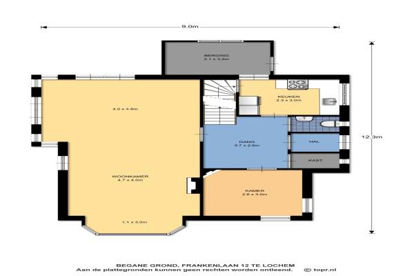
Het adres van deze woning uit 1935 is Frankenlaan 12 te Lochem. Het pand heeft een oppervlakte van 176m² en een perceeloppervlakte van 521m² en heeft 5 kamers kamers waarvan 2 slaapkamers. De geschatte waarde van deze woning is € 515.000.

Bekijk alle woningen in Lochem-Oost

Gegevens van Eengezinswoning, vrijstaande woning

Bouwjaar
1935
Geschatte waarde
€ 515.000
Oppervlakte
176 m2
Inhoud
610 m3
Aantal kamers
5 kamers
Slaapkamers
2
Badkamers
1 badkamer en 2 aparte toiletten
Soort bouw
Bestaande bouw
Eigendomssituatie
Volle eigendom
Ligging
Aan rustige weg
Tuin
Achtertuin, voortuin en zijtuin
Achtertuin
180 m² (10m diep en 18m breed)

Voorzieningen in de buurt

Boodschappen0,5 km
Grote supermarkt0,8 km
Cafetaria0,6 km
Restaurant0,6 km
Huisarts0,5 km
Ziekenhuis0,6 km
Kinderdagverblijf0,8 km
BSO0,8 km
Alle voorzieningen in Lochem-Oost

Binnenkijken bij Frankenlaan 12 te Lochem

Meer meldingen in deze omgeving

112 melding
Woensdag 19-11-2025 om 17:07
Goorseweg, 7241DC Lochem

112 melding
Woensdag 19-11-2025 om 17:07
Goorseweg, 7241DC Lochem

Nieuw bedrijf
November 2025
Prins Bernhardweg 16, 7241DH Lochem

Binnenkijken bij
Dinsdag 11-11-2025
Zwiepseweg 27, 7241GM Lochem

Binnenkijken bij
Dinsdag 11-11-2025
Kastanjelaan 13, 7241DX Lochem

Binnenkijken bij
Dinsdag 11-11-2025
Dr. ten Bokkel Huininkweg 9, 7241HT Lochem

Nieuw bedrijf
Oktober 2025
Zwiepseweg 120, 7241GZ Lochem

Binnenkijken bij
Woensdag 29-10-2025
Groenewegje 5, 7241HB Lochem

Direct een e-mail ontvangen bij nieuwe meldingen in deze regio?

Meld je dan GRATIS aan voor de Oozo Alert service voor Lochem-Oost

Instellen

Meer nieuws in Lochem-Oost

Weten hoe eenvoudig het is om af te vallen? Zonder pillen en smeersels en zonder je in het zweet te werken!
Kijk op eenvoudig-afvallen.nl

© 2012 - 2025 OOZO.nl - info@oozo.nl - Gegevens verwijderen? | Disclaimer | Privacy statement