Woning Akkerwinde 12 Lochem

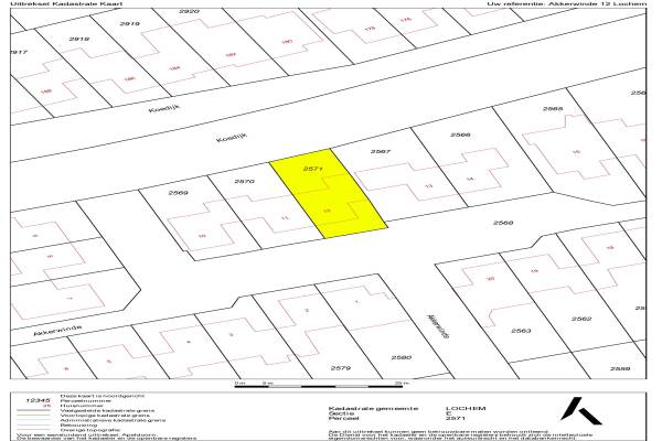
Akkerwinde 12, 7242MX Lochem

Ontvang updates voor Lochem-West

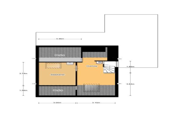
Het adres van deze woning uit 1981 is Akkerwinde 12 te Lochem. Het pand heeft een oppervlakte van 158m² en een perceeloppervlakte van 255m² en heeft 6 kamers kamers waarvan 4 slaapkamers. De geschatte waarde van deze woning is € 279.000.

Bekijk alle woningen in Lochem-West

Gegevens van Eengezinswoning, 2-onder-1-kapwoning

Bouwjaar
1981
Geschatte waarde
€ 279.000
Oppervlakte
158 m2
Inhoud
530 m3
Aantal kamers
6 kamers
Slaapkamers
4
Badkamers
1 badkamer en 1 apart toilet
Soort bouw
Bestaande bouw
Eigendomssituatie
Volle eigendom
Ligging
Aan rustige weg, in woonwijk, beschutte ligging en in bosrijke omgeving
Tuin
Achtertuin, voortuin en zonneterras
Achtertuin
110 m² (11m diep en 10m breed)

Voorzieningen in de buurt

Boodschappen1,0 km
Grote supermarkt1,0 km
Cafetaria1,5 km
Restaurant1,4 km
Huisarts1,5 km
Ziekenhuis2,2 km
Kinderdagverblijf0,5 km
BSO0,5 km
Alle voorzieningen in Lochem-West

Binnenkijken bij Akkerwinde 12 te Lochem

Meer meldingen in deze omgeving

Binnenkijken bij
Donderdag 9-10-2025
Heggerank 15, 7242ME Lochem

Nieuw bedrijf
Oktober 2025
Daslook 20d, 7242MD Lochem

Binnenkijken bij
Zaterdag 27-9-2025
Schweitzerweg 29, 7242HP Lochem

Binnenkijken bij
Vrijdag 19-9-2025
Witbol 11, 7242MV Lochem

112 melding
Donderdag 11-9-2025 om 14:30
Henry Dunantweg, Lochem

Nieuw bedrijf
September 2025
Henry Dunantweg 55, 7242HE Lochem

112 melding
Maandag 18-8-2025 om 14:07
Zutphenseweg, 7241SE Lochem

Nieuw bedrijf
Juli 2025
Zernikeplein 11, 7242JB Lochem

Direct een e-mail ontvangen bij nieuwe meldingen in deze regio?

Meld je dan GRATIS aan voor de Oozo Alert service voor Lochem-West

Instellen

Meer nieuws in Lochem-West

Weten hoe eenvoudig het is om af te vallen? Zonder pillen en smeersels en zonder je in het zweet te werken!
Kijk op eenvoudig-afvallen.nl

© 2012 - 2025 OOZO.nl - info@oozo.nl - Gegevens verwijderen? | Disclaimer | Privacy statement