Woning Markt 13f Lochem

Markt 13f, 7241AA Lochem

Ontvang updates voor Vesting

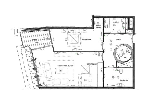
Het adres van deze woning uit 2019 is Markt 13f te Lochem. Het pand heeft een oppervlakte van 88m² en heeft 2 kamers kamers waarvan 1 slaapkamers. De geschatte waarde van deze woning is € 360.000.

Bekijk alle woningen in Vesting

Gegevens van Bovenwoning (appartement)

Bouwjaar
2019
Geschatte waarde
€ 360.000
Oppervlakte
88 m2
Inhoud
320 m3
Aantal kamers
2 kamers
Slaapkamers
1
Badkamers
1 apart toilet
Soort bouw
Bestaande bouw
Eigendomssituatie
Volle eigendom
Ligging
In centrum

Voorzieningen in de buurt

Boodschappen0,1 km
Grote supermarkt0,4 km
Cafetaria0,1 km
Restaurant0,1 km
Huisarts0,3 km
Ziekenhuis1,1 km
Kinderdagverblijf0,2 km
BSO0,4 km
Alle voorzieningen in Vesting

Binnenkijken bij Markt 13f te Lochem

Meer meldingen in deze omgeving

Binnenkijken bij
Zondag 21-12-2025
Hoogestraatje 13, 7241AL Lochem

Faillissement
Vrijdag 19-12-2025
Molenstraat 12, 7241AE Lochem

Onroerend goed
Zaterdag 13-12-2025
Molenstraat 46, 7241AE Lochem

Onroerend goed
Woensdag 10-12-2025
Bierstraat 7- 11, 7241AG Lochem

Nieuw bedrijf
December 2025
Hoogestraatje 13, 7241AL Lochem

Nieuw bedrijf
December 2025
Achterstraat 17, 7241AV Lochem

Nieuw bedrijf
December 2025
Achterstraat 17, 7241AV Lochem

Nieuw bedrijf
December 2025
Achterstraat 17, 7241AV Lochem

Direct een e-mail ontvangen bij nieuwe meldingen in deze regio?

Meld je dan GRATIS aan voor de Oozo Alert service voor Vesting

Instellen

Meer nieuws in Vesting

Weten hoe eenvoudig het is om af te vallen? Zonder pillen en smeersels en zonder je in het zweet te werken!
Kijk op eenvoudig-afvallen.nl

© 2012 - 2025 OOZO.nl - info@oozo.nl - Gegevens verwijderen? | Disclaimer | Privacy statement