Woning Dorpstraat 45 De Lutte

Dorpstraat 45, 7587AB De Lutte

Ontvang updates voor De Lutte kern

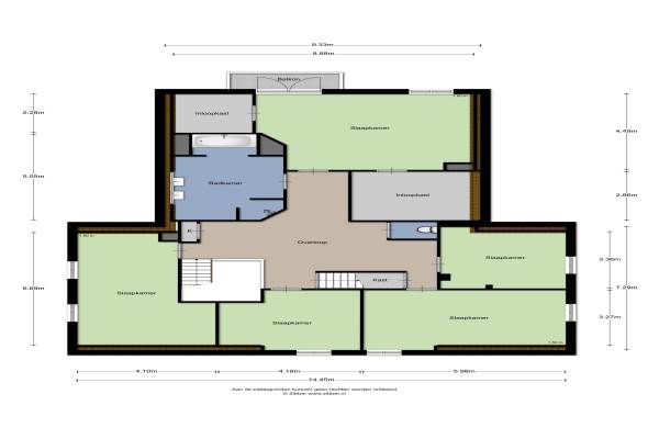
Het adres van deze woning uit 1923 is Dorpstraat 45 te De Lutte. Het pand heeft een oppervlakte van 395m² en een perceeloppervlakte van 2091m² en heeft 10 kamers kamers waarvan 5 slaapkamers. De geschatte waarde van deze woning is € 925.000.

Bekijk alle woningen in De Lutte kern

Gegevens van Landhuis, vrijstaande woning

Bouwjaar
1923
Geschatte waarde
€ 925.000
Oppervlakte
395 m2
Inhoud
1379 m3
Aantal kamers
10 kamers
Slaapkamers
5
Badkamers
1 badkamer en 2 aparte toiletten
Soort bouw
Bestaande bouw
Eigendomssituatie
Eigendom belast met opstal
Ligging
Aan rustige weg, in centrum en in woonwijk
Tuin
Tuin rondom

Voorzieningen in de buurt

Boodschappen0,6 km
Grote supermarkt0,8 km
Cafetaria0,7 km
Restaurant0,6 km
Huisarts1,2 km
Ziekenhuis5,7 km
Kinderdagverblijf0,8 km
BSO0,8 km
Alle voorzieningen in De Lutte kern

Binnenkijken bij Dorpstraat 45 te De Lutte

Meer meldingen in deze omgeving

Binnenkijken bij
Dinsdag 30-9-2025
Beatrixstraat 3, 7587AE de Lutte

Binnenkijken bij
Woensdag 24-9-2025
Stellingmolen 40, 7587RV de Lutte

Binnenkijken bij
Maandag 22-9-2025
Stellingmolen 38, 7587RV de Lutte

Binnenkijken bij
Vrijdag 19-9-2025
Pastoor Geerdinkstraat 624, 7587AR de Lutte

Nieuw bedrijf
September 2025
Luttermolenweg 11, 7587RH de Lutte

Nieuw bedrijf
September 2025
Luttermolenweg 11, 7587RH de Lutte

Nieuw bedrijf
September 2025
Luttermolenweg 11, 7587RH de Lutte

Nieuw bedrijf
September 2025
Luttermolenweg 11, 7587RH de Lutte

Direct een e-mail ontvangen bij nieuwe meldingen in deze regio?

Meld je dan GRATIS aan voor de Oozo Alert service voor De Lutte kern

Instellen

Meer nieuws in De Lutte kern

Weten hoe eenvoudig het is om af te vallen? Zonder pillen en smeersels en zonder je in het zweet te werken!
Kijk op eenvoudig-afvallen.nl

© 2012 - 2025 OOZO.nl - info@oozo.nl - Gegevens verwijderen? | Disclaimer | Privacy statement