Woning Kerkhofweg 67 Overdinkel

Kerkhofweg 67, 7586AB Overdinkel

Ontvang updates voor Overdinkel kern

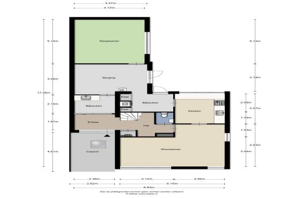
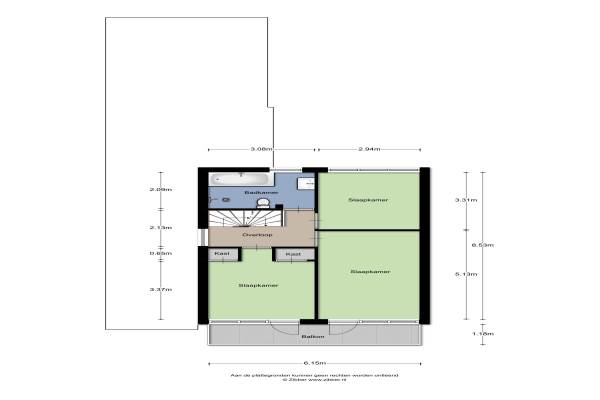
Het adres van deze woning uit 1974 is Kerkhofweg 67 te Overdinkel. Het pand heeft een oppervlakte van 172m² en een perceeloppervlakte van 510m² en heeft 6 kamers kamers waarvan 5 slaapkamers. De geschatte waarde van deze woning is € 225.000.

Bekijk alle woningen in Overdinkel kern

Gegevens van Eengezinswoning, vrijstaande woning

Bouwjaar
1974
Geschatte waarde
€ 225.000
Oppervlakte
172 m2
Inhoud
620 m3
Aantal kamers
6 kamers
Slaapkamers
5
Badkamers
1 badkamer en 1 apart toilet
Soort bouw
Bestaande bouw
Eigendomssituatie
Volle eigendom
Tuin
Achtertuin, voortuin en zijtuin
Achtertuin
180 m² (20m diep en 9m breed)

Voorzieningen in de buurt

Boodschappen1,2 km
Grote supermarkt0,5 km
Cafetaria0,4 km
Restaurant0,5 km
Huisarts0,5 km
Ziekenhuis12,0 km
Kinderdagverblijf0,5 km
BSO0,5 km
Alle voorzieningen in Overdinkel kern

Binnenkijken bij Kerkhofweg 67 te Overdinkel

Meer meldingen in deze omgeving

Nieuw bedrijf
November 2025
Hoofdstraat 80, 7586BV Overdinkel

Nieuw bedrijf
November 2025
Dr Ariënsstraat 103, 7586EP Overdinkel

Nieuw bedrijf
November 2025
Kerkhofweg 57, 7586AB Overdinkel

Nieuw bedrijf
November 2025
Hoofdstraat 299, 7586BS Overdinkel

Binnenkijken bij
Donderdag 30-10-2025
Tjibbe Knolstraat 46, 7586BC Overdinkel

Nieuw bedrijf
Oktober 2025
het Welpelo 37, 7586DC Overdinkel

Binnenkijken bij
Woensdag 29-10-2025
Spinnersweg 6, 7586CH Overdinkel

112 melding
Zondag 26-10-2025 om 16:31
Hoofdstraat, Overdinkel

Direct een e-mail ontvangen bij nieuwe meldingen in deze regio?

Meld je dan GRATIS aan voor de Oozo Alert service voor Overdinkel kern

Instellen

Meer nieuws in Overdinkel kern

Weten hoe eenvoudig het is om af te vallen? Zonder pillen en smeersels en zonder je in het zweet te werken!
Kijk op eenvoudig-afvallen.nl

© 2012 - 2025 OOZO.nl - info@oozo.nl - Gegevens verwijderen? | Disclaimer | Privacy statement