Woning Industrieweg 4 Ammerzoden

Industrieweg 4, 5324JX Ammerzoden

Ontvang updates voor Verspreide huizen Uilecoten

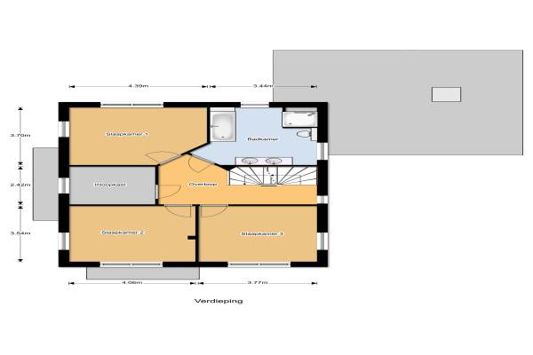
Het adres van deze woning uit 2011 is Industrieweg 4 te Ammerzoden. Het pand heeft een oppervlakte van 192m² en een perceeloppervlakte van 1004m² en heeft 9 kamers kamers waarvan 3 slaapkamers. De geschatte waarde van deze woning is € 765.000.

Bekijk alle woningen in Verspreide huizen Uilecoten

Gegevens van Herenhuis, vrijstaande woning

Bouwjaar
2011
Geschatte waarde
€ 765.000
Oppervlakte
192 m2
Inhoud
700 m3
Aantal kamers
9 kamers
Slaapkamers
3
Badkamers
1 badkamer
Soort bouw
Bestaande bouw
Eigendomssituatie
Volle eigendom
Ligging
Aan rustige weg
Tuin
Achtertuin en voortuin
Achtertuin
39 m² (10m diep en 3,89m breed)

Voorzieningen in de buurt

Boodschappen1,1 km
Grote supermarkt1,3 km
Cafetaria1,1 km
Restaurant1,1 km
Huisarts0,9 km
Ziekenhuis8,7 km
Kinderdagverblijf0,9 km
BSO0,9 km
Alle voorzieningen in Verspreide huizen Uilecoten

Binnenkijken bij Industrieweg 4 te Ammerzoden

Meer meldingen in deze omgeving

Onroerend goed
Donderdag 23-4-2026
Gaardenweg 3, 5324JJ Ammerzoden

112 melding
Vrijdag 17-4-2026 om 17:23
Bovendijk, 5324AZ Ammerzoden

112 melding
Vrijdag 17-4-2026 om 17:23
Bovendijk, 5324AZ Ammerzoden

Nieuw bedrijf
April 2026
Wordragensestraat 4, 5324JM Ammerzoden

Binnenkijken bij
Maandag 23-3-2026
Uilecotenweg 12, 5324JT Ammerzoden

Binnenkijken bij
Maandag 9-3-2026
Zandweg 4A, 5324JN Ammerzoden

Faillissement
Woensdag 4-3-2026
Hoge Heiligenweg 16a, 5324JS Ammerzoden

112 melding
Zaterdag 14-2-2026 om 03:16
Hoge Heiligenweg, 5324JS Ammerzoden

Direct een e-mail ontvangen bij nieuwe meldingen in deze regio?

Meld je dan GRATIS aan voor de Oozo Alert service voor Verspreide huizen Uilecoten

Instellen

Meer nieuws in Verspreide huizen Uilecoten

Weten hoe eenvoudig het is om af te vallen? Zonder pillen en smeersels en zonder je in het zweet te werken!
Kijk op eenvoudig-afvallen.nl

© 2012 - 2026 OOZO.nl - info@oozo.nl - Gegevens verwijderen? | Disclaimer | Privacy statement