Woning Slijksestraat 24 Well

Slijksestraat 24, 5325KB Well

Ontvang updates voor Wellseind-Slijkwell

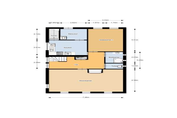
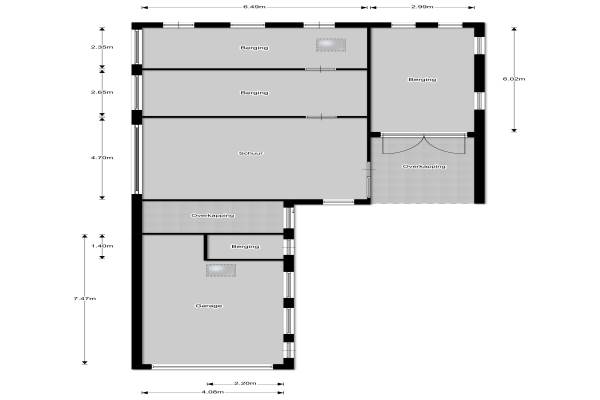
Het adres van deze woning uit 1976 is Slijksestraat 24 te Well. Het pand heeft een oppervlakte van 130m² en een perceeloppervlakte van 9500m² en heeft 5 kamers kamers waarvan 4 slaapkamers. De geschatte waarde van deze woning is € 499.000.

Bekijk alle woningen in Wellseind-Slijkwell

Gegevens van Woonboerderij, vrijstaande woning

Bouwjaar
1976
Geschatte waarde
€ 499.000
Oppervlakte
130 m2
Inhoud
510 m3
Aantal kamers
5 kamers
Slaapkamers
4
Badkamers
1 apart toilet
Soort bouw
Bestaande bouw
Eigendomssituatie
Volle eigendom
Ligging
Aan rustige weg, vrij uitzicht en landelijk gelegen
Tuin
Tuin rondom

Voorzieningen in de buurt

Boodschappen1,9 km
Grote supermarkt1,9 km
Cafetaria1,8 km
Restaurant0,7 km
Huisarts1,8 km
Ziekenhuis9,4 km
Kinderdagverblijf1,3 km
BSO3,4 km
Alle voorzieningen in Wellseind-Slijkwell

Binnenkijken bij Slijksestraat 24 te Well

Meer meldingen in deze omgeving

112 melding
Dinsdag 3-3-2026 om 20:49
Slijkwellsedijk, 5325KC Well

112 melding
Dinsdag 3-3-2026 om 20:48
Slijkwellsedijk, 5325KC Well

112 melding
Dinsdag 3-3-2026 om 20:47
Slijkwellsedijk, 5325KC Well

112 melding
Dinsdag 3-3-2026 om 20:47
Slijkwellsedijk, 5325KC Well

Nieuw bedrijf
Februari 2026
Onderweg 11, 5325KE Well

Nieuw bedrijf
Januari 2026
Slijkwellsestraat 20c, 5325KB Well

Faillissement
Woensdag 3-12-2025
Slijkwellsestraat 6a, 5325KB Well

Nieuw bedrijf
Oktober 2025
Klemit 8, 5325KG Well

Direct een e-mail ontvangen bij nieuwe meldingen in deze regio?

Meld je dan GRATIS aan voor de Oozo Alert service voor Wellseind-Slijkwell

Instellen

Meer nieuws in Wellseind-Slijkwell

Weten hoe eenvoudig het is om af te vallen? Zonder pillen en smeersels en zonder je in het zweet te werken!
Kijk op eenvoudig-afvallen.nl

© 2012 - 2026 OOZO.nl - info@oozo.nl - Gegevens verwijderen? | Disclaimer | Privacy statement