Woning Kruisstraat 2 Maassluis

Kruisstraat 2, 3142CB Maassluis

Ontvang updates voor Vertobuurt

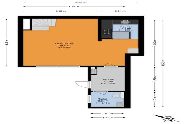
Het adres van deze woning uit 1920 is Kruisstraat 2 te Maassluis. Het pand heeft een oppervlakte van 60m² en een perceeloppervlakte van 70m² en heeft 2 kamers kamers waarvan 1 slaapkamers. De geschatte waarde van deze woning is € 275.000.

Bekijk alle woningen in Vertobuurt

Gegevens van Eengezinswoning, tussenwoning

Bouwjaar
1920
Geschatte waarde
€ 275.000
Oppervlakte
60 m2
Inhoud
228 m3
Aantal kamers
2 kamers
Slaapkamers
1
Badkamers
1 badkamer en 1 apart toilet
Soort bouw
Bestaande bouw
Ligging
Aan rustige weg, beschutte ligging, in centrum en in woonwijk
Tuin
Voortuin

Voorzieningen in de buurt

Boodschappen0,3 km
Grote supermarkt0,3 km
Cafetaria0,3 km
Restaurant0,3 km
Huisarts0,6 km
Ziekenhuis1,6 km
Kinderdagverblijf0,6 km
BSO0,6 km
Alle voorzieningen in Vertobuurt

Binnenkijken bij Kruisstraat 2 te Maassluis

Meer meldingen in deze omgeving

112 melding
Zondag 25-1-2026 om 18:33
Noordvliet, 3142CL Maassluis

112 melding
Zondag 25-1-2026 om 13:23
Noordvliet, 3142CL Maassluis

112 melding
Zondag 25-1-2026 om 10:42
Veerstraat, 3142CP Maassluis

112 melding
Zaterdag 24-1-2026 om 17:00
Wagenstraat, 3142CR Maassluis

112 melding
Zaterdag 24-1-2026 om 11:39
Nieuwe Kerkstraat, Maassluis

112 melding
Zaterdag 24-1-2026 om 09:52
Spinnerij, 3142BN Maassluis

112 melding
Vrijdag 23-1-2026 om 09:53
Goudsteen, 3142CA Maassluis

112 melding
Vrijdag 23-1-2026 om 08:35
Hekelarij, 3142BD Maassluis

Direct een e-mail ontvangen bij nieuwe meldingen in deze regio?

Meld je dan GRATIS aan voor de Oozo Alert service voor Vertobuurt

Instellen

Meer nieuws in Vertobuurt

Weten hoe eenvoudig het is om af te vallen? Zonder pillen en smeersels en zonder je in het zweet te werken!
Kijk op eenvoudig-afvallen.nl

© 2012 - 2026 OOZO.nl - info@oozo.nl - Gegevens verwijderen? | Disclaimer | Privacy statement