Woning Manshaag 24 Maastricht

Manshaag 24, 6228EN Maastricht

Ontvang updates voor De Heeg

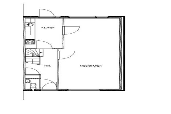
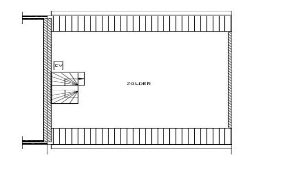
Het adres van deze woning uit 1980 is Manshaag 24 te Maastricht. Het pand heeft een oppervlakte van 95m² en een perceeloppervlakte van 122m² en heeft 4 kamers kamers waarvan 3 slaapkamers. De geschatte waarde van deze woning is € 175.000.

Bekijk alle woningen in De Heeg

Gegevens van Eengezinswoning, tussenwoning

Bouwjaar
1980
Geschatte waarde
€ 175.000
Oppervlakte
95 m2
Inhoud
345 m3
Aantal kamers
4 kamers
Slaapkamers
3
Badkamers
1 badkamer en 1 apart toilet
Soort bouw
Bestaande bouw
Ligging
In woonwijk
Tuin
Achtertuin
Achtertuin
31 m² (3,76m diep en 8,3m breed)

Voorzieningen in de buurt

Boodschappen0,6 km
Grote supermarkt0,6 km
Cafetaria0,7 km
Restaurant0,8 km
Huisarts0,6 km
Ziekenhuis1,8 km
Kinderdagverblijf0,6 km
BSO0,9 km
Alle voorzieningen in De Heeg

Binnenkijken bij Manshaag 24 te Maastricht

Meer meldingen in deze omgeving

Binnenkijken bij
Vrijdag 30-1-2026
Roserije 3C, 6228DH Maastricht

Binnenkijken bij
Vrijdag 30-1-2026
Trappendaal 4C, 6228GK Maastricht

Nieuw bedrijf
Januari 2026
Rudolf Dieselstraat 62, 6229SC Maastricht

Nieuw bedrijf
Januari 2026
Roserije 101D, 6228DK Maastricht

Binnenkijken bij
Donderdag 22-1-2026
Meendaal 226, 6228GS Maastricht

Binnenkijken bij
Woensdag 21-1-2026
Sleuteldaal 9, 6228KB Maastricht

Nieuw bedrijf
Januari 2026
Haeskensdaal 18, 6228GN Maastricht

Nieuw bedrijf
Januari 2026
Eykelborg 38, 6228BS Maastricht

Direct een e-mail ontvangen bij nieuwe meldingen in deze regio?

Meld je dan GRATIS aan voor de Oozo Alert service voor De Heeg

Instellen

Meer nieuws in De Heeg

Weten hoe eenvoudig het is om af te vallen? Zonder pillen en smeersels en zonder je in het zweet te werken!
Kijk op eenvoudig-afvallen.nl

© 2012 - 2026 OOZO.nl - info@oozo.nl - Gegevens verwijderen? | Disclaimer | Privacy statement