Woning Sint Amandusstraat 27 Maastricht

Sint Amandusstraat 27, 6212CL Maastricht

Ontvang updates voor Villapark

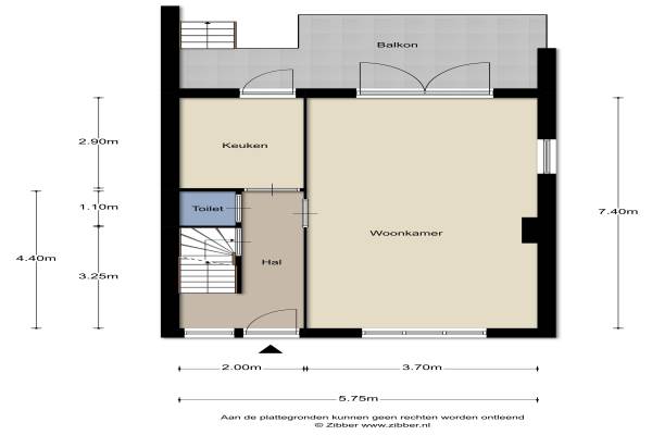
Het adres van deze woning uit 1953 is Sint Amandusstraat 27 te Maastricht. Het pand heeft een oppervlakte van 112m² en een perceeloppervlakte van 210m² en heeft 5 kamers kamers waarvan 4 slaapkamers. De geschatte waarde van deze woning is € 350.000.

Bekijk alle woningen in Villapark

Gegevens van Eengezinswoning, hoekwoning

Bouwjaar
1953
Geschatte waarde
€ 350.000
Oppervlakte
112 m2
Inhoud
535 m3
Aantal kamers
5 kamers
Slaapkamers
4
Badkamers
1 badkamer en 1 apart toilet
Soort bouw
Bestaande bouw
Eigendomssituatie
Volle eigendom
Ligging
Aan rustige weg en in woonwijk
Tuin
Achtertuin, zijtuin en zonneterras
Achtertuin
65 m² (10m diep en 6,5m breed)

Voorzieningen in de buurt

Boodschappen0,4 km
Grote supermarkt0,4 km
Cafetaria0,4 km
Restaurant0,2 km
Huisarts0,4 km
Ziekenhuis2,4 km
Kinderdagverblijf0,5 km
BSO0,4 km
Alle voorzieningen in Villapark

Binnenkijken bij Sint Amandusstraat 27 te Maastricht

Meer meldingen in deze omgeving

Binnenkijken bij
Vrijdag 28-11-2025
Burgemeester Ceulenstraat 75, 6212CR Maastricht

Nieuw bedrijf
November 2025
Sint Pieterskade 23, 6212AC Maastricht

Nieuw bedrijf
November 2025
Perroenweg 30, 6212EG Maastricht

Nieuw bedrijf
November 2025
Observantenweg 78, 6212ES Maastricht

Binnenkijken bij
Dinsdag 25-11-2025
Kapelweg 3A, 6212CK Maastricht

Binnenkijken bij
Vrijdag 21-11-2025
Glacisweg 4, 6212BP Maastricht

Binnenkijken bij
Zondag 16-11-2025
Parkweg 9B, 6212XN Maastricht

112 melding
Zaterdag 15-11-2025 om 19:30
Glacisweg, Maastricht

Direct een e-mail ontvangen bij nieuwe meldingen in deze regio?

Meld je dan GRATIS aan voor de Oozo Alert service voor Villapark

Instellen

Meer nieuws in Villapark

Weten hoe eenvoudig het is om af te vallen? Zonder pillen en smeersels en zonder je in het zweet te werken!
Kijk op eenvoudig-afvallen.nl

© 2012 - 2025 OOZO.nl - info@oozo.nl - Gegevens verwijderen? | Disclaimer | Privacy statement