Woning Klammeland 10 Benningbroek

Klammeland 10, 1654KH Benningbroek

Ontvang updates voor Benningbroek-West

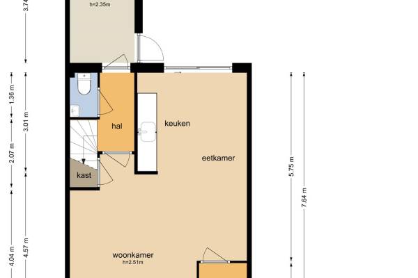
Het adres van deze woning uit 1983 is Klammeland 10 te Benningbroek. Het pand heeft een oppervlakte van 87m² en een perceeloppervlakte van 170m² en heeft 4 kamers kamers waarvan 3 slaapkamers. De geschatte waarde van deze woning is € 239.000.

Bekijk alle woningen in Benningbroek-West

Gegevens van Eengezinswoning, tussenwoning

Bouwjaar
1983
Geschatte waarde
€ 239.000
Oppervlakte
87 m2
Inhoud
326 m3
Aantal kamers
4 kamers
Slaapkamers
3
Badkamers
1 badkamer en 1 apart toilet
Soort bouw
Bestaande bouw
Eigendomssituatie
Volle eigendom
Tuin
Achtertuin en voortuin
Achtertuin
72 m² (13 meter diep en 5,5 meter breed)

Voorzieningen in de buurt

Boodschappen4,8 km
Grote supermarkt0,6 km
Cafetaria5,4 km
Restaurant0,5 km
Huisarts0,6 km
Ziekenhuis11,7 km
Kinderdagverblijf0,5 km
BSO0,4 km
Alle voorzieningen in Benningbroek-West

Binnenkijken bij Klammeland 10 te Benningbroek

Meer meldingen in deze omgeving

112 melding
Dinsdag 5-5-2026 om 14:46
Mient, Sijbekarspel

112 melding
Dinsdag 5-5-2026 om 14:46
Mient, Sijbekarspel

112 melding
Maandag 4-5-2026 om 23:32
Burgemeester Elmersstraat, Sijbekarspel

112 melding
Maandag 4-5-2026 om 23:13
Burgemeester Elmersstraat, Sijbekarspel

112 melding
Maandag 4-5-2026 om 22:02
Burgemeester Elmersstraat, Sijbekarspel

112 melding
Donderdag 30-4-2026 om 23:26
Westerstraat, 1655LH Sijbekarspel

112 melding
Maandag 27-4-2026 om 11:08
Burgemeester Elmersstraat, 1655KJ Sijbekarspel

112 melding
Maandag 20-4-2026 om 21:47
Dokter de Vriesstraat, Benningbroek

Direct een e-mail ontvangen bij nieuwe meldingen in deze regio?

Meld je dan GRATIS aan voor de Oozo Alert service voor Benningbroek-West

Instellen

Meer nieuws in Benningbroek-West

Weten hoe eenvoudig het is om af te vallen? Zonder pillen en smeersels en zonder je in het zweet te werken!
Kijk op eenvoudig-afvallen.nl

© 2012 - 2026 OOZO.nl - info@oozo.nl - Gegevens verwijderen? | Disclaimer | Privacy statement