Woning Bruggelkes 4 Geulle

Bruggelkes 4, 6243CH Geulle

Ontvang updates voor Brommelen-Westbroek

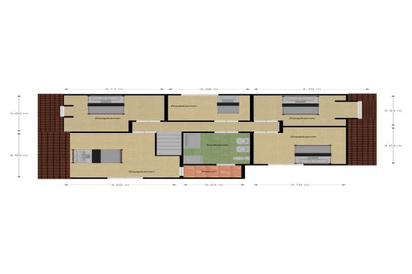
Het adres van deze woning uit 1979 is Bruggelkes 4 te Geulle. Het pand heeft een oppervlakte van 187m² en een perceeloppervlakte van 5985m² en heeft 13 kamers kamers waarvan 5 slaapkamers. De geschatte waarde van deze woning is € 579.000.

Bekijk alle woningen in Brommelen-Westbroek

Gegevens van Landhuis, vrijstaande woning

Bouwjaar
1979
Geschatte waarde
€ 579.000
Oppervlakte
187 m2
Inhoud
947 m3
Aantal kamers
13 kamers
Slaapkamers
5
Soort bouw
Bestaande bouw
Eigendomssituatie
Volle eigendom
Ligging
Aan bosrand, aan rustige weg en in bosrijke omgeving
Tuin
Achtertuin en voortuin

Voorzieningen in de buurt

Boodschappen1,5 km
Grote supermarkt2,4 km
Cafetaria0,6 km
Restaurant1,1 km
Huisarts1,6 km
Ziekenhuis8,3 km
Kinderdagverblijf2,0 km
BSO2,4 km
Alle voorzieningen in Brommelen-Westbroek

Binnenkijken bij Bruggelkes 4 te Geulle

Meer meldingen in deze omgeving

Nieuw bedrijf
December 2025
Brommelen 6, 6243CP GEULLE

112 melding
Woensdag 10-12-2025 om 12:11
Brommelen, Geulle

112 melding
Woensdag 10-12-2025 om 12:11
Brommelen, Geulle

112 melding
Woensdag 10-12-2025 om 12:09
Brommelen, Geulle

Nieuw bedrijf
Oktober 2025
Westbroek 60, 6243CJ Geulle

112 melding
Vrijdag 10-10-2025 om 13:02
Westbroek, 6243CG Geulle (Kampweg)

Nieuw bedrijf
Oktober 2025
Bruggelkes 4, 6243CH Geulle

Binnenkijken bij
Woensdag 23-7-2025
Westbroek 63, 6243CG Geulle

Direct een e-mail ontvangen bij nieuwe meldingen in deze regio?

Meld je dan GRATIS aan voor de Oozo Alert service voor Brommelen-Westbroek

Instellen

Meer nieuws in Brommelen-Westbroek

Weten hoe eenvoudig het is om af te vallen? Zonder pillen en smeersels en zonder je in het zweet te werken!
Kijk op eenvoudig-afvallen.nl

© 2012 - 2026 OOZO.nl - info@oozo.nl - Gegevens verwijderen? | Disclaimer | Privacy statement