Woning 't Kempke 69 Bunde

't Kempke 69, 6241CX Bunde

Ontvang updates voor Bunde

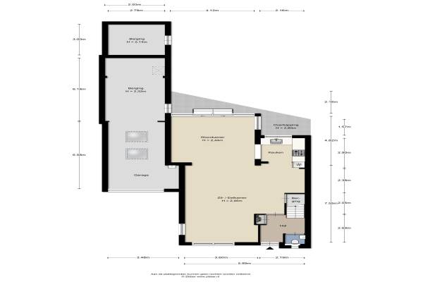
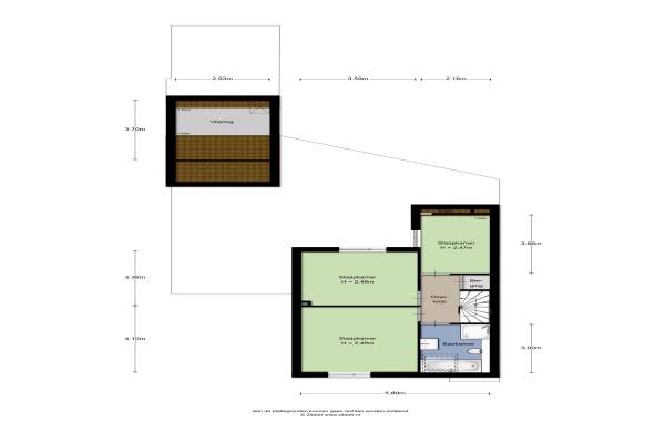
Het adres van deze woning uit 1985 is 't Kempke 69 te Bunde. Het pand heeft een oppervlakte van 138m² en een perceeloppervlakte van 304m² en heeft 5 kamers kamers waarvan 4 slaapkamers. De geschatte waarde van deze woning is € 325.000.

Bekijk alle woningen in Bunde

Gegevens van Eengezinswoning, halfvrijstaande woning

Bouwjaar
1985
Geschatte waarde
€ 325.000
Oppervlakte
138 m2
Inhoud
671 m3
Aantal kamers
5 kamers
Slaapkamers
4
Soort bouw
Bestaande bouw
Eigendomssituatie
Volle eigendom
Ligging
Aan rustige weg, in woonwijk en open ligging
Tuin
Achtertuin en voortuin

Voorzieningen in de buurt

Boodschappen0,6 km
Grote supermarkt0,7 km
Cafetaria0,5 km
Restaurant0,6 km
Huisarts0,6 km
Ziekenhuis6,3 km
Kinderdagverblijf0,5 km
BSO0,7 km
Alle voorzieningen in Bunde

Binnenkijken bij 't Kempke 69 te Bunde

Meer meldingen in deze omgeving

Binnenkijken bij
Zondag 22-2-2026
In de Bongerd 21, 6241JE Bunde

Binnenkijken bij
Zaterdag 21-2-2026
Spoorstraat 25, 6241CL Bunde

Nieuw bedrijf
Februari 2026
Pletsstraat 24, 6241CN Bunde

112 melding
Woensdag 11-2-2026 om 12:44
Sint Rochusstraat, 6241CD Bunde

Faillissement
Dinsdag 10-2-2026
Meerstraat 50, 6241ND Bunde

Binnenkijken bij
Zaterdag 7-2-2026
Lindenlaan 64, 6241BD Bunde

Binnenkijken bij
Zaterdag 7-2-2026
Oranjeplein 1, 6241EN Bunde

Nieuw bedrijf
Februari 2026
Prins Clauslaan 13, 6241GK Bunde

Direct een e-mail ontvangen bij nieuwe meldingen in deze regio?

Meld je dan GRATIS aan voor de Oozo Alert service voor Bunde

Instellen

Meer nieuws in Bunde

Weten hoe eenvoudig het is om af te vallen? Zonder pillen en smeersels en zonder je in het zweet te werken!
Kijk op eenvoudig-afvallen.nl

© 2012 - 2026 OOZO.nl - info@oozo.nl - Gegevens verwijderen? | Disclaimer | Privacy statement