Woning Vaansingel 30 Erp

Vaansingel 30, 5469AT Erp

Ontvang updates voor Erp Centrum

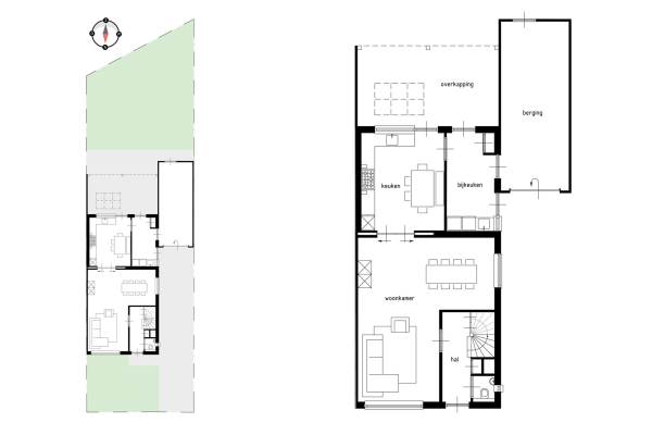
Het adres van deze woning uit 1972 is Vaansingel 30 te Erp. Het pand heeft een oppervlakte van 140m² en een perceeloppervlakte van 308m² en heeft 6 kamers kamers waarvan 4 slaapkamers. De geschatte waarde van deze woning is € 284.000.

Bekijk alle woningen in Erp Centrum

Gegevens van Eengezinswoning, 2-onder-1-kapwoning

Bouwjaar
1972
Geschatte waarde
€ 284.000
Oppervlakte
140 m2
Inhoud
509 m3
Aantal kamers
6 kamers
Slaapkamers
4
Badkamers
1 apart toilet
Soort bouw
Bestaande bouw
Eigendomssituatie
Volle eigendom
Ligging
In woonwijk
Tuin
Achtertuin en voortuin
Achtertuin
143 m² (15m diep en 9,5m breed)

Voorzieningen in de buurt

Boodschappen0,3 km
Grote supermarkt0,3 km
Cafetaria0,2 km
Restaurant0,5 km
Huisarts0,6 km
Ziekenhuis8,0 km
Kinderdagverblijf0,4 km
BSO1,2 km
Alle voorzieningen in Erp Centrum

Binnenkijken bij Vaansingel 30 te Erp

Meer meldingen in deze omgeving

Nieuw bedrijf
December 2025
Hertog Janplein 23, 5469BJ Erp

Nieuw bedrijf
November 2025
Hertog Janplein 23, 5469BJ Erp

Nieuw bedrijf
November 2025
Hertog Janplein 23, 5469BJ Erp

Nieuw bedrijf
November 2025
Hertog Janplein 23, 5469BJ Erp

Binnenkijken bij
Dinsdag 11-11-2025
Mgr Dr Meuwesestraat 18, 5469BE Erp

Binnenkijken bij
Dinsdag 11-11-2025
Pentelstraat 25, 5469BG Erp

Onroerend goed
Woensdag 29-10-2025
Cruijgenstraat 21-A, 5469BS Erp

Nieuw bedrijf
Oktober 2025
Pentelstraat 57, 5469BG Erp

Direct een e-mail ontvangen bij nieuwe meldingen in deze regio?

Meld je dan GRATIS aan voor de Oozo Alert service voor Erp Centrum

Instellen

Meer nieuws in Erp Centrum

Weten hoe eenvoudig het is om af te vallen? Zonder pillen en smeersels en zonder je in het zweet te werken!
Kijk op eenvoudig-afvallen.nl

© 2012 - 2025 OOZO.nl - info@oozo.nl - Gegevens verwijderen? | Disclaimer | Privacy statement