Woning Madeliefstraat 13 Schijndel

Madeliefstraat 13, 5482MB Schijndel

Ontvang updates voor Boschweg Noordoost

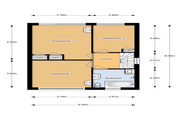
Het adres van deze woning uit 1973 is Madeliefstraat 13 te Schijndel. Het pand heeft een oppervlakte van 141m² en een perceeloppervlakte van 300m² en heeft 5 kamers kamers waarvan 4 slaapkamers. De geschatte waarde van deze woning is € 289.500.

Bekijk alle woningen in Boschweg Noordoost

Gegevens van Eengezinswoning, 2-onder-1-kapwoning

Bouwjaar
1973
Geschatte waarde
€ 289.500
Oppervlakte
141 m2
Inhoud
424 m3
Aantal kamers
5 kamers
Slaapkamers
4
Badkamers
1 badkamer en 1 apart toilet
Soort bouw
Bestaande bouw
Eigendomssituatie
Volle eigendom
Ligging
Aan rustige weg en in woonwijk
Tuin
Achtertuin, voortuin en zijtuin
Achtertuin
163 m² (16,3m diep en 10m breed)

Voorzieningen in de buurt

Boodschappen0,4 km
Grote supermarkt0,3 km
Cafetaria0,3 km
Restaurant0,6 km
Huisarts1,4 km
Ziekenhuis9,8 km
Kinderdagverblijf0,7 km
BSO0,7 km
Alle voorzieningen in Boschweg Noordoost

Binnenkijken bij Madeliefstraat 13 te Schijndel

Meer meldingen in deze omgeving

Nieuw bedrijf
April 2026
Zwembadweg 99, 5482RH Schijndel

Binnenkijken bij
Donderdag 16-4-2026
Papaverstraat 44, 5482MD Schijndel

112 melding
Vrijdag 10-4-2026 om 21:59
Marjoleinhof, Schijndel

Binnenkijken bij
Vrijdag 10-4-2026
Leliestraat 1, 5482MK Schijndel

Nieuw bedrijf
April 2026
Daliastraat 1, 5482RR Schijndel

Binnenkijken bij
Zondag 29-3-2026
Boschweg 6513, 5481EC Schijndel

Faillissement
Donderdag 26-3-2026
Tulpstraat 21, 5482RC Schijndel

Binnenkijken bij
Woensdag 25-3-2026
Boschweg 103, 5481ED Schijndel

Direct een e-mail ontvangen bij nieuwe meldingen in deze regio?

Meld je dan GRATIS aan voor de Oozo Alert service voor Boschweg Noordoost

Instellen

Meer nieuws in Boschweg Noordoost

Weten hoe eenvoudig het is om af te vallen? Zonder pillen en smeersels en zonder je in het zweet te werken!
Kijk op eenvoudig-afvallen.nl

© 2012 - 2026 OOZO.nl - info@oozo.nl - Gegevens verwijderen? | Disclaimer | Privacy statement