Woning Schoolhuisweg 7 Veghel

Schoolhuisweg 7, 5466PG Veghel

Ontvang updates voor Eerde

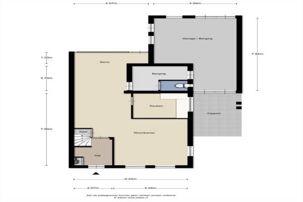
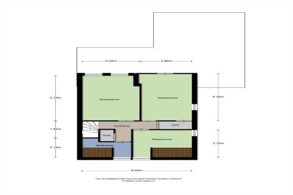
Het adres van deze woning uit 1986 is Schoolhuisweg 7 te Veghel. Het pand heeft een oppervlakte van 140m² en een perceeloppervlakte van 615m² en heeft 4 kamers kamers waarvan 3 slaapkamers. De geschatte waarde van deze woning is € 370.000.

Bekijk alle woningen in Eerde

Gegevens van Eengezinswoning, halfvrijstaande woning

Bouwjaar
1986
Geschatte waarde
€ 370.000
Oppervlakte
140 m2
Inhoud
626 m3
Aantal kamers
4 kamers
Slaapkamers
3
Soort bouw
Bestaande bouw
Eigendomssituatie
Volle eigendom
Ligging
In woonwijk en aan rustige weg
Tuin
Achtertuin
Achtertuin
405 m² (30m diep en 13,5m breed)

Voorzieningen in de buurt

Boodschappen0,3 km
Grote supermarkt4,3 km
Cafetaria0,3 km
Restaurant1,7 km
Huisarts4,0 km
Ziekenhuis13,1 km
Kinderdagverblijf0,4 km
BSO0,4 km
Alle voorzieningen in Eerde

Binnenkijken bij Schoolhuisweg 7 te Veghel

Meer meldingen in deze omgeving

Nieuw bedrijf
Mei 2026
Kapelstraat 57, 5466PB Veghel

Binnenkijken bij
Dinsdag 5-5-2026
Schoolhuisweg 19, 5466PG Veghel

Binnenkijken bij
Dinsdag 5-5-2026
Schoolhuisweg 10, 5466PG Veghel

112 melding
Maandag 27-4-2026 om 17:32
Kapelstraat, Veghel

112 melding
Zondag 26-4-2026 om 22:09
Eerdsebaan, 5466RR Veghel

Nieuw bedrijf
April 2026
Kerkhoefweg 3, 5466PH Veghel

Faillissement
Vrijdag 10-4-2026
Kapelstraat 25, 5466PA Veghel

Binnenkijken bij
Maandag 6-4-2026
Geronimoplein 14, 5466NZ Veghel

Direct een e-mail ontvangen bij nieuwe meldingen in deze regio?

Meld je dan GRATIS aan voor de Oozo Alert service voor Eerde

Instellen

Meer nieuws in Eerde

Weten hoe eenvoudig het is om af te vallen? Zonder pillen en smeersels en zonder je in het zweet te werken!
Kijk op eenvoudig-afvallen.nl

© 2012 - 2026 OOZO.nl - info@oozo.nl - Gegevens verwijderen? | Disclaimer | Privacy statement