Woning Puoldyk 31 Dronryp

Puoldyk 31, 9035BX Dronryp

Ontvang updates voor Dronrijp

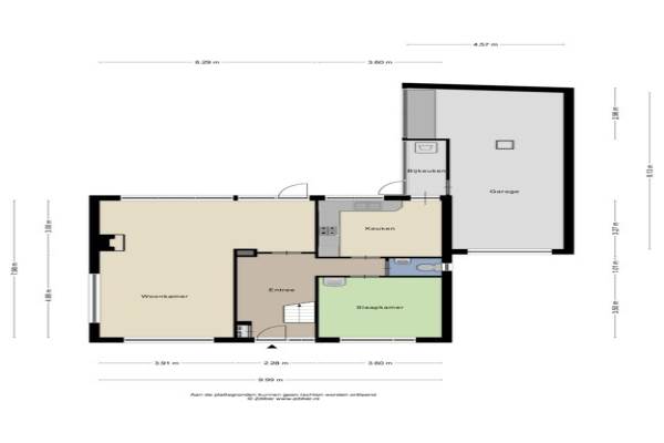
Het adres van deze woning uit 1976 is Puoldyk 31 te Dronryp. Het pand heeft een oppervlakte van 136m² en een perceeloppervlakte van 448m² en heeft 5 kamers kamers waarvan 4 slaapkamers. De geschatte waarde van deze woning is € 375.000.

Bekijk alle woningen in Dronrijp

Gegevens van Eengezinswoning

Bouwjaar
1976
Geschatte waarde
€ 375.000
Oppervlakte
136 m2
Inhoud
626 m3
Aantal kamers
5 kamers
Slaapkamers
4
Badkamers
1 badkamer en 1 apart toilet
Soort bouw
Bestaande bouw
Eigendomssituatie
Volle eigendom
Tuin
Tuin
Achtertuin
90 m² (6 meter diep en 15 meter breed)

Voorzieningen in de buurt

Binnenkijken bij Puoldyk 31 te Dronryp

Meer meldingen in deze omgeving

112 melding
Dinsdag 11-11-2025 om 12:29
De Koarte Ekers, 9035GK Dronryp

Nieuw bedrijf
Oktober 2025
Reindersbuorren 3, 9035AA Dronryp

Nieuw bedrijf
Oktober 2025
Hearewei 35, 9035EJ Dronryp

Nieuw bedrijf
Oktober 2025
Holpaed 16A, 9035AG Dronryp

Binnenkijken bij
Donderdag 9-10-2025
Siaerdamasingel 49, 9035GG Dronryp

Nieuw bedrijf
Oktober 2025
De Koarte Ekers 3, 9035GK Dronryp

Nieuw bedrijf
Oktober 2025
Wytze van Camminghastrjitte 9, 9035CN Dronryp

Nieuw bedrijf
Oktober 2025
Puoldyk 21, 9035BX Dronryp

Direct een e-mail ontvangen bij nieuwe meldingen in deze regio?

Meld je dan GRATIS aan voor de Oozo Alert service voor Dronrijp

Instellen

Meer nieuws in Dronrijp

Weten hoe eenvoudig het is om af te vallen? Zonder pillen en smeersels en zonder je in het zweet te werken!
Kijk op eenvoudig-afvallen.nl

© 2012 - 2025 OOZO.nl - info@oozo.nl - Gegevens verwijderen? | Disclaimer | Privacy statement