Woning Romptastrjitte 13 Menaam

Romptastrjitte 13, 9036PK Menaam

Ontvang updates voor Menaldum

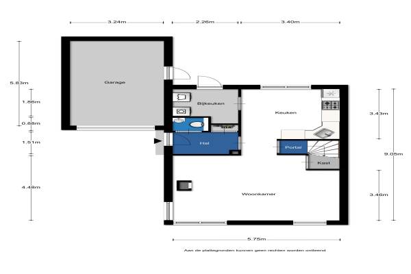
Het adres van deze woning uit 1992 is Romptastrjitte 13 te Menaam. Het pand heeft een oppervlakte van 116m² en een perceeloppervlakte van 258m² en heeft 5 kamers kamers waarvan 4 slaapkamers. De geschatte waarde van deze woning is € 200.000.

Bekijk alle woningen in Menaldum

Gegevens van Eengezinswoning, 2-onder-1-kapwoning

Bouwjaar
1992
Geschatte waarde
€ 200.000
Oppervlakte
116 m2
Inhoud
469 m3
Aantal kamers
5 kamers
Slaapkamers
4
Badkamers
1 badkamer en 1 apart toilet
Soort bouw
Bestaande bouw
Eigendomssituatie
Volle eigendom
Ligging
Aan rustige weg en in woonwijk
Tuin
Achtertuin en voortuin
Achtertuin
110 m² (11m diep en 10m breed)

Voorzieningen in de buurt

Binnenkijken bij Romptastrjitte 13 te Menaam

Meer meldingen in deze omgeving

Nieuw bedrijf
November 2025
Moolnersrak 10A, 9036MJ Menaam

Nieuw bedrijf
November 2025
Grêftswâl 1, 9036LM Menaam

Nieuw bedrijf
November 2025
Skilpaed 1, 9036MH Menaam

Binnenkijken bij
Maandag 17-11-2025
Achterbosk 5, 9036KV Menaam

112 melding
Zondag 16-11-2025 om 19:04
Romptastrjitte, 9036PK Menaam

112 melding
Zondag 16-11-2025 om 19:02
Romptastrjitte, 9036PK Menaam

Nieuw bedrijf
November 2025
Sint Lambertusstrjitte 20, 9036PB Menaam

Binnenkijken bij
Vrijdag 10-10-2025
De Finne 27, 9036KL Menaam

Direct een e-mail ontvangen bij nieuwe meldingen in deze regio?

Meld je dan GRATIS aan voor de Oozo Alert service voor Menaldum

Instellen

Meer nieuws in Menaldum

Weten hoe eenvoudig het is om af te vallen? Zonder pillen en smeersels en zonder je in het zweet te werken!
Kijk op eenvoudig-afvallen.nl

© 2012 - 2025 OOZO.nl - info@oozo.nl - Gegevens verwijderen? | Disclaimer | Privacy statement