Woning Voorstraat 11 Meppel

Voorstraat 11, 7941VW Meppel

Ontvang updates voor Indische buurt

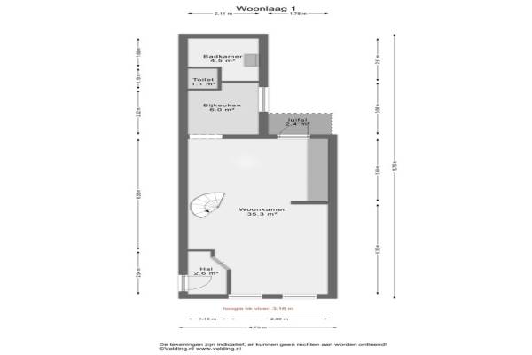
Het adres van deze woning uit 1900 is Voorstraat 11 te Meppel. Het pand heeft een oppervlakte van 70m² en een perceeloppervlakte van 77m² en heeft 3 kamers kamers waarvan 2 slaapkamers. De geschatte waarde van deze woning is € 205.000.

Bekijk alle woningen in Indische buurt

Gegevens van Woning

Bouwjaar
1900
Geschatte waarde
€ 205.000
Oppervlakte
70 m2
Inhoud
220 m3
Aantal kamers
3 kamers
Slaapkamers
2
Badkamers
1 badkamer
Soort bouw
Bestaande bouw
Eigendomssituatie
Volle eigendom
Ligging
In centrum
Tuin
Tuin
Achtertuin
17 m² (7,8 meter diep en 2,17 meter breed)

Voorzieningen in de buurt

Boodschappen0,2 km
Grote supermarkt0,2 km
Cafetaria0,2 km
Restaurant0,3 km
Huisarts0,3 km
Ziekenhuis2,6 km
Kinderdagverblijf0,2 km
BSO0,2 km
Alle voorzieningen in Indische buurt

Binnenkijken bij Voorstraat 11 te Meppel

Meer meldingen in deze omgeving

Onroerend goed
Woensdag 19-11-2025
Woldstraat 43, 7941LG Meppel

Binnenkijken bij
Dinsdag 11-11-2025
Marktstraat 2, 7941KR Meppel

Binnenkijken bij
Dinsdag 11-11-2025
Soembastraat 30, 7941VR Meppel

Nieuw bedrijf
Oktober 2025
Ambonstraat 4, 7941VL Meppel

Faillissement
Donderdag 9-10-2025
Gasgracht 3, 7941KG Meppel

Nieuw bedrijf
Oktober 2025
Gasgracht 3, 7941KG Meppel

Binnenkijken bij
Donderdag 25-9-2025
Burgemeester Knopperslaan 29B, 7941KM Meppel

Binnenkijken bij
Dinsdag 23-9-2025
Timorstraat 15, 7941VH Meppel

Direct een e-mail ontvangen bij nieuwe meldingen in deze regio?

Meld je dan GRATIS aan voor de Oozo Alert service voor Indische buurt

Instellen

Meer nieuws in Indische buurt

Weten hoe eenvoudig het is om af te vallen? Zonder pillen en smeersels en zonder je in het zweet te werken!
Kijk op eenvoudig-afvallen.nl

© 2012 - 2025 OOZO.nl - info@oozo.nl - Gegevens verwijderen? | Disclaimer | Privacy statement